300.000 Immobilien in Österreich
Österreichs größtes Immobilienportal

Gewerbeflächen für Dienstleistung Produktion Lagerung Verkauf

Angebot auf Scout24
auf immi.at seit 05.10.2020
Kategorie Gewerbe, Industrie
Adresse 6134 Vomp
Schwaz
Tirol
Preis EUR 14.900
Preis pro m2 EUR 6,49
Typ Miete
provisionsfrei ja
Fläche 2.295m2
Räume 27

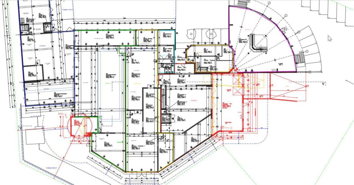
Der Zentralbereich des Gebäudes der ehemaligen Möbelfabrik Bär kann als separate Einheit gemietet werden und umfasst den in der Planskizze des Erdgeschosses (EG) in Grün, Gelb, Orange und Rot eingefärbten Bereich und im Obergeschoss (OG) den in Grün eingefärbten Bereich. Zusätzlich könnte derzeit noch der ehemalige Schauraum (Flächen EG in violett und OG in Violett und Rot) gemietet werden. In jedem Fall stehen Freiflächen im Ausmaß von über 1800 qm zur Verfügung (welche im Angebotspreis nicht enthalten sind). Jeder der eingefärbten Bereiche kann auch separat gemietet werden. Das Gebäude ist in substanziell sehr gutem Zustand. Der Gewerbebetrieb (Produktion) wurde bis Ende 2019 betrieben und der Handelsbetrieb wird bis 31.08.2020 in vollem Umfang aufrecht erhalten bleiben. Alle hierfür laufenden behördlichen und gewerblichen Evaluierungen wurden fach-, sach- und fristgerecht durchgeführt. Das Betriebsgebäude befindet sich in einem sehr guten Zustand. Die Freifläche ist durchgehende asphaltiert, womit großzügige Dispositionsfläche und Parkplätze für Kunden und Mitarbeiter zur Verfügung stehen. Die Zufahrtsmöglichkeit bietet ausreichend Raum für Sattelschlepper und größere Maschinenfahrzeuge. Das Gebäude ist mit zwei LKW -Laderampen, einem 5 Meter breiten Falttor bzw. insgesamt 10 Ladezonen disponierbar. Zwei im Gebäude integrierte Lastenliftanlagen ermöglichen eine funktionelle Bewirtschaftung der Obergeschosse. Die schöne Gestaltung der Verkaufs- und Verwaltungsräumlichkeiten bieten eine Vielzahl von Möglichkeiten für nahezu jedes Business. Die Räumlichkeiten der ehemaligen Produktion bestechen durch eine sehr durchdachte und flexibel gestaltbare Raumaufteilung. Die großzügigen Raumhöhen ermöglichen nahezu alle gewerblichen Nutzungen. Ausreichend sanitäre Anlagen und Mitarbeiterräumlichkeiten ergänzen die Möglichkeiten für eine nahezu grenzenlose Nutzung. Die sehr umfangreiche technische Ausstattung, wie beispielsweise Druckluftversorgung im gesamten Erdgeschoss, Starkstromanschlüsse, Wärmetauscher in allen Lagerräumlichkeiten, Luftabsaugungsanlagen, Unterflurkanalschächte für einfach und schnelle Leitungsverlegungen, sowie EDV Leitungen in allen Gebäudeabschnitten bieten für Handwerk, Handel, Gewerbe und Industrie ideale Voraussetzungen, um kostengünstig und rasch Ihr Geschäftsmodell auszubauen und erfolgreich weiterzuentwickeln.

Zuletzt besuchte Einträge