300.000 Immobilien in Österreich
Österreichs größtes Immobilienportal

Top Anlageobjekt für touristische Vermietung nähe Bayrischzell

Angebot auf Scout24
auf immi.at seit 07.10.2020
Kategorie Wohnung
Adresse 6335 Thiersee
Kufstein
Tirol
Preis k.A.
Preis pro m2 k.A.
Typ Kauf
provisionsfrei nein
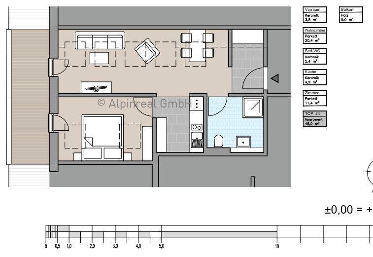
Fläche 46m2
Räume 2

Einmalige Gelegenheit! Ferienwohnungen in der wunderschönen Region Thiersee in Tirol. Sichern Sie sich eine von 23 Ferienwohnungen welche bereits teilweise Bestand, teilweise umgebaut und teilweise neu errichtet werden. Ideal gelegen zwischen den Skigebieten Hinterthiersee und Bayrisch Zell. Im Winter ein ideales Ski- und Langlaufgebiet für Anfänger bis Könner und im Sommer ein wunderschönes Wandergebiet. Hier findet man ein ideales Zusammenspiel zwischen Abenteuer und Erholung. Die Ferienwohnungen reichen von der kleinsten für 1 Person bis hin zur größten für bis zu 9 Personen. Der Großteil der Appartements ist mit einem Balkon ausgestattet und alle Wohnungen verfügen natürlich über eine eigene Küche. Jedem Top ist ein Parkplatz zugeordnet, welcher im Preis bereits enthalten ist. Die Tops des 1. und 2. Obergeschosses sind bereits Bestand und wurden 2017 renoviert, die Tops 21-24 sind Dachgeschosswohnungen, welche neu errichtet werden. Zu erwähnen ist auch das Restaurant im selben Gebäude, welches mit sehr guter traditioneller Küche aufwartet. Betrieber vor Ort. Preisangaben netto (exkl. USt.) Für nähere Auskünfte senden Sie uns eine Anfrage! Das Angebot ist freibleibend. Die Angaben erfolgen aufgrund der Informationen und Unterlagen, die uns vom Eigentümer sowie Dritten zu Verfügung gestellt wurden, und sind ohne Gewähr. Technische Einrichtungen wurden von der Firma Alpinreal nicht auf ihre Funktion überprüft. Achtung: Aufgrund der Nachweispflicht gegenüber den Abgebern können wir nur Anfragen mit vollständiger Anschrift und einer gültigen Telefonnummer bearbeiten. Zu erwartende Nebenkosten: Grunderwerbssteuer: 3,5% des Kaufpreises Grundbuchkosten: 1,1 % des Kaufpreises (Eintragungsgebühr ohne Pfandrechte) Vertragserrichtung: ca. 1,5 % - 3 % des Kaufpreises Vermittlungsprovision: 3 % des Kaufpreises bzw. nach Maklergesetz Barauslagen für Stempelmarken und Beglaubigungen Umsatzsteuer für Vertragserrichtungshonorar und VermittlungsprovisionAngaben gemäß gesetzlichem Erfordernis: Heizwärmebedarf: 136.0 kWh/(m²a) Klasse Heizwärmebedarf: D Faktor Gesamtenergieeffizienz: 1.32 Klasse Faktor Gesamtenergieeffizienz: C

Zuletzt besuchte Einträge