300.000 Immobilien in Österreich
Österreichs größtes Immobilienportal

ERSTBEZUG MIT FERNBLICK | Dachgeschoss mit ca. 10 m² INNENHOF-BALKON/TERRASSE | TG-Stellplatz optional | Nachhaltiges Wohnbauprojekt

Angebot auf immoads
auf immi.at seit 27.08.2025
Kategorie Dachgeschoßwohnung
Adresse 1120 Wien
Wien 12.,Meidling
Wien
Preis EUR 723.600
Preis pro m2 EUR 8.512,94
Typ
provisionsfrei nein
Fläche 85m2
Räume 3

NACHHALTIGES WOHNBAUPROJEKT IM HIPPEN MEIDLING BEZUGSFERTIG
 

In diesem zukunftsweisenden Wohnprojekt im angesagten Meidling, an der Ecke zur Längenfeldgasse entstanden 78 Wohnungen und 2 Ateliers mit verschiedenen Raumgrößen und eignen sich aufgrund der intelligenten Grundrissplanungperfekt für Singles, Paare und Familien. Zusätzlich entstanden 31 Tiefgaragenstellplätze. Die modernen Wohneinheiten sind mit Parkett und Fußbodenheizung ausgestattet. Das sorgt nicht nur für warme Füße, auch die Energiekosten können dank Fernwärme gesenkt werden. Außenliegender, elektrisch gesteuerter Sonnenschutz und Klimaanlagen im Dachgeschoß versprechen perfekt temperierte Sommertage. Die hochwertig ausgestatteten Bäder wurden als wahre Wohlfühlzonen konzipiert. Eine perfekte Symbiose aus Funktionalität und Design verstärkt dabei den Wellness-Faktor.

Der Großteil der Wohnungen verfügt über einen Garten, einen Balkon oder eine Terrasse – mit Blick in den grünen Innenhof oder auf das urbane Treiben der Stadt.Bodentiefe Fensterverbinden den Innenraum mit dem Freibereich und ermöglichen freie Sicht nach draußen. Lichtdurchflutete Wohnräume sorgen für eine angenehme Atmosphäre und ein gesundes RaumklimaAllen Bewohnern steht ein hauseigener Freizeitraum mit Küche zur Verfügung. 

Im Mittelpunkt dieses Neubauprojekts standen die Erschaffung von nachhaltigem Lebensraum und das Wohlbefinden der zukünftigen Bewohner. Neben der Optimierung der Nutzungsdauer der Immobile, wurde beim Bauen auf die Minimierung des Verbrauchs von Energie und natürlicher Ressourcen geachtet. Der Entwickler übernimmt damit die Verantwortung für zukünftigen Generationen. Er ist Mitglied der ÖGNI (Österreichische Gesellschaft für nachhaltige Immobilienwirtschaft) und so wurde das Projekt bereits für die Kategorie DGNB Gold vorzertifiziert

Das hippe Viertel rund um den Meidlinger Markt, der das ganze Jahr über für kulinarische Vielfalt sorgt, ist dank seiner lebendigen Nachbarschaft und perfekten Anbindung vor allem bei Entrepreneuren, Jungdesignern und innovativen Gastronomen beliebt. Aber auch die Klubkultur, Wirtshäuser und Beisl kennzeichnen den Charakter des 12. Bezirks. Unweit der Arndtstraße findet man den legendären U4 Nachtclub, in dem sich in der Vergangenheit Größen wie Falco und Kurt Cobain die Seele aus dem Leib gesungen haben. Für Erholung sorgen der Nahe gelegene Schlosspark und das Theresienbad. Gleich um die Ecke befindet sich die Station Längenfeldgasse, bei der sich die U-Bahnlinien U4, U6 und die Buslinie 12A kreuzen. Fußläufig erreichbar sind auch die Linie 62, die Badner Bahn sowie einige weitere innerstädtische Buslinien. Zum Bahnhof Meidling gelangen Sie nach einem kurzen Fußweg von 15 Minuten
 

PROJEKT

  • 78 Eigentumswohnungen und 2 Ateliers/Büro/Ordination
  • 2 bis 4 Zimmer mit Größen von ca. 40 bis 129 m²
  • Gärten, Balkone und Terrassen
  • Modern ausgestatteter Gemeinschaftsraum
  • 31 Tiefgaragenstellplätze (optional zu erwerben)
  • Energieklasse B (HWB 26,4 kWh/m2a, fGEE 0,73)
  • Ideal für Anleger und Eigennutzer
     

HIGHLIGHTS

  • Eichenparkettböden
  • Fernwärme 
  • Fußbodenheizung
  • Außenliegender elektrischer Sonnenschutz
  • Klimaanlage im DG
  • Paketboxenanlage
  • Videogegensprechanlage
  • Smarte Hausverwaltungsapp
  • praktische Zentralschlossanlage (ein Schlüssel sperrt alles)
  • E-Mobilität
  • Photovoltaik am Dach
  • Regionale Baustoffe
  • DGNB Gold vorzertifiziert
  • Meidlinger Markt ca. 7 Gehminuten entfernt 
  • U4/U6 Station Längenfeldgasse in ca. 3 Minuten zu Fuß erreichbar 
  • ca. 10 Minuten öffentlich bis Schönbrunn 
  • ca. 12 Minuten öffentlich in die Innere Stadt 
  • Billa & Penny fußläufig erreichbar

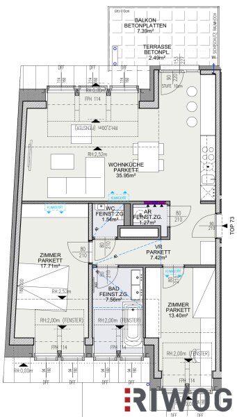
INFOS ZUR WOHNUNG

  • WOHNFLÄCHE:ca. 84,8 m²
  • ZIMMER: 3
  • BALKON: ca. 7,4
  • TERRASSE: ca. 2,5 m²
  • EINLAGERUNGSRAUM: ca. 1,3 m²
  • AUSRICHTUNG: Südwest/Nordost
  • GESCHOSS: 1.DG

     

Betriebskosten: EUR 166,80
WE-Rücklage: EUR 41,50
USt. 10%: EUR 16,68
Gesamt EUR 224,98 p.M. derzeit

 

Kaufpreis Eigennutzer (WHG): 723.600,00 € 

Kaufpreis Anleger netto (WHG): 675.900,00 € zzgl. 20% USt.

Kaufpreis TG-Stellplatz Eigennutzer: 28.000,00 € Duplex (unten) | 30.000,00 € Duplex (oben) | 38.000,00 € bzw. 42.000,00 Einzelstellplatz

 

Vertragserrichtung: Gebunden | 1,5% vom Kaufpreis zzgl. 20% Ust. zzgl. Barauslagen zzgl. Beglaubigungskosten

Provision: 3% vom Kaufpreis zzgl. 20% USt.
 

Wir freuen uns auf Ihre schriftliche Anfrage, um Ihnen dieses exklusive Projekt näher bringen zu dürfen. 

Wir weisen darauf hin, dass zwischen dem Vermittler und dem zu vermittelnden Dritten ein familiäres oder wirtschaftliches Naheverhältnis besteht.

Der Vermittler ist als Doppelmakler tätig.

Infrastruktur / Entfernungen

Gesundheit
Arzt <100m
Apotheke <200m
Klinik <500m
Krankenhaus <1.150m

Kinder & Schulen
Schule <150m
Kindergarten <350m
Universität <150m
Höhere Schule <575m

Nahversorgung
Supermarkt <50m
Bäckerei <225m
Einkaufszentrum <500m

Sonstige
Geldautomat <600m
Bank <550m
Post <300m
Polizei <150m

Verkehr
Bus <25m
U-Bahn <175m
Straßenbahn <550m
Bahnhof <200m
Autobahnanschluss <3.150m

Angaben Entfernung Luftlinie / Quelle: OpenStreetMap

Zuletzt besuchte Einträge