300.000 Immobilien in Österreich
Österreichs größtes Immobilienportal

Exklusives Wohnen in der Donaustadt: 53 Neubauwohnungen mit bester Infrastruktur und hoher Rendite

Angebot auf immoads
FMH
auf immi.at seit 15.10.2024
Kategorie Wohnung
Adresse 1220 Wien
Wien 22.,Donaustadt
Wien
Preis EUR 297.772
Preis pro m2 EUR 6.335,57
Typ
provisionsfrei nein
Fläche 47m2
Räume 2

Wohnen nahe der Alten Donau!

In unmittelbarer Nähe zum Donauzentrum, dem größten Einkaufszentrum Wiens, und der idyllischen Alten Donau, einem der beliebtesten Erholungsgebiete der Stadt, steht ein moderner Neubau mit insgesamt 53 Wohnungen. In den Verkauf gelangen 11 Wohnungen mit Wohnungsgrößen zwischen 47 und 93m². Jede Wohnung verfügt über eine Freifläche, welche dazu einlädt laue Sommerabende darauf zu verbringen.

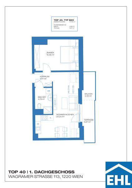
Top 40 befindet sich im 1. Dachgeschoss, hat 2 Zimmer und einen geräumigen Balkon. Zur schlüsselfertigen Wohnung erhalten sie ein Markenküche!

Das Objekt

  • 11 Wohnungen verfügbar (2-4-Zimmer)
  • Wohnungsgrößen zwischen 47 und 93 m²
  • PKW-Stellplätze in der Tiefgarage
  • Geräumiger Fahrradabstellraum im Keller
  • Energieausweis:
    • HWB: 19,80 kWh/m²a; Klasse A
    • fGEE: 0,74, Klasse A

 

Die Ausstattung

  • Fernwärme, Steuerung mittels witterungsgeführter Vorlauftemperaturregelung
  • Fußbodenheizung
  • Vorbereitung zur nachträglichen Installation von Klimaanlagen im 1. und 2. DG
  • 2-Schicht-Fertigparkett, 1-Stab-Dielen in Eichenholz Natur lackiert
  • Hochwertige, einfarbige Wand- und Bodenfliesen in den Nassräumen (Format 60x30)
  • Marken Sanitär-Keramik und Marken Armaturen
  • Hochwertige Marken-Kunststofffenster
  • Einbruchshemmende Vollbautüre mit Stahl- oder Holzumfassungszarge (RC2)
  • Teilweise inklusive Einbauküche

Die Lage:

Der Gemeindebezirk Donaustadt ist weit über die Grenzen der österreichischen Bundeshauptstadt hinaus für sein modernes Zentrum bekannt. Berühmte Gebäude wie die UNO-City oder das höchste Gebäude Österreichs, der DC-Tower, befinden sich in der Donaustadt und verleihen dem Standort einen internationalen und modernen Charakter.

  • U-Bahn: U1 Kagraner Platz
  • Straßenbahn: 26
  • Autobus: 22A, 27A, 93A, 94A

Fertigstellung: Bereits fertiggestellt!
3% Kundenprovision

Wir weisen darauf hin, dass zwischen dem Vermittler und dem zu vermittelnden Dritten ein familiäres oder wirtschaftliches Naheverhältnis besteht.

Der Vermittler ist als Doppelmakler tätig.

Infrastruktur / Entfernungen

Gesundheit
Arzt <250m
Apotheke <500m
Klinik <2.250m
Krankenhaus <3.500m

Kinder & Schulen
Schule <250m
Kindergarten <250m
Universität <1.250m
Höhere Schule <500m

Nahversorgung
Supermarkt <250m
Bäckerei <250m
Einkaufszentrum <500m

Sonstige
Geldautomat <250m
Bank <250m
Post <750m
Polizei <500m

Verkehr
Bus <250m
U-Bahn <250m
Straßenbahn <500m
Bahnhof <500m
Autobahnanschluss <1.750m

Angaben Entfernung Luftlinie / Quelle: OpenStreetMap

Zuletzt besuchte Einträge