300.000 Immobilien in Österreich
Österreichs größtes Immobilienportal

Wohnen mit Zukunft – Reihenhäuser zum Mieten & Kaufen in Wiener

Angebot auf immoads
auf immi.at seit 11.10.2025
Kategorie Reihenhaus
Adresse 2700 Wiener Neustadt
Wiener Neustadt(Stadt)
Niederösterreich
Preis EUR 1.447
Preis pro m2 EUR 12,16
Typ
provisionsfrei ja
Fläche 119m2
Räume 4

Förderbare Reihenhäuser in Wiener Neustadt – Ihr leistbares Eigenheim wartet auf Sie!

Die neu Fertiggestellten Reihenhäuser in nachhaltiger Holzbauweise sind perfekt für all jene, die Wert auf ein durchdachtes Wohnkonzept in naturnaher Umgebung legen. Die grüne Lage nahe dem Wiener Neustädter Kanal, oft als „Canale Grande von Niederösterreich“ bezeichnet, bietet weitläufige Grünflächen und beste Freizeitmöglichkeiten. Dank der Nähe zum Civitas Nova Bahnhof genießen Sie zudem eine optimale Anbindung.

Mietkauf möglich! Ihr Eigentum von morgen - wie funktioniert das Modell?

Das Mietkaufmodell bietet Ihnen die Möglichkeit, Ihr zukünftiges Eigenheim zunächst zu mieten und sich später für den Kauf zu entscheiden. Dabei profitieren Sie von einer flexiblen Lösung, die Ihnen Zeit gibt, Ihre Wohnsituation zu testen und gleichzeitig einen finanziellen Vorteil bei einer späteren Kaufentscheidung zu sichern.

So funktioniert es:

Beim Abschluss des Mietvertrags leisten Sie eine Mietvorauszahlung von 10 % des Kaufpreises. Diese Vorauszahlung führt zu einer Reduktion Ihrer monatlichen Mietkosten, da der angezahlte Betrag anteilig Monat für Monat zur teilweisen Deckung Ihrer Mietkosten verwendet wird.  Die Mietvertragslaufzeit beträgt sechs Jahre, wobei Sie bereits ab dem vierten Jahr die Möglichkeit haben, das Haus zu kaufen.

Während der Mietzeit wird die Miete gemäß dem Verbraucherpreisindex (VPI) angepasst. Ein PKW-Stellplatz ist bereits in der Miete inkludiert, darüber hinaus ist keine gesonderte Kaution zu leisten oder ein Optionsentgelt zu bezahlen - das reduziert Ihre anfänglichen finanziellen Belastungen.

Sollten Sie sich für den Kauf entscheiden, wird der ursprünglich vereinbarte Kaufpreis angepasst: Bei einem Kauf nach drei bzw. bis sechs Jahren wird der Kaufpreis indexiert. Dieses Modell ermöglicht es Ihnen, Ihr neues Zuhause zunächst kennenzulernen und sich später für den Kauf zu entscheiden – mit dem Vorteil, dass ein Teil der gezahlten Miete direkt in Ihr Eigentum fließt.

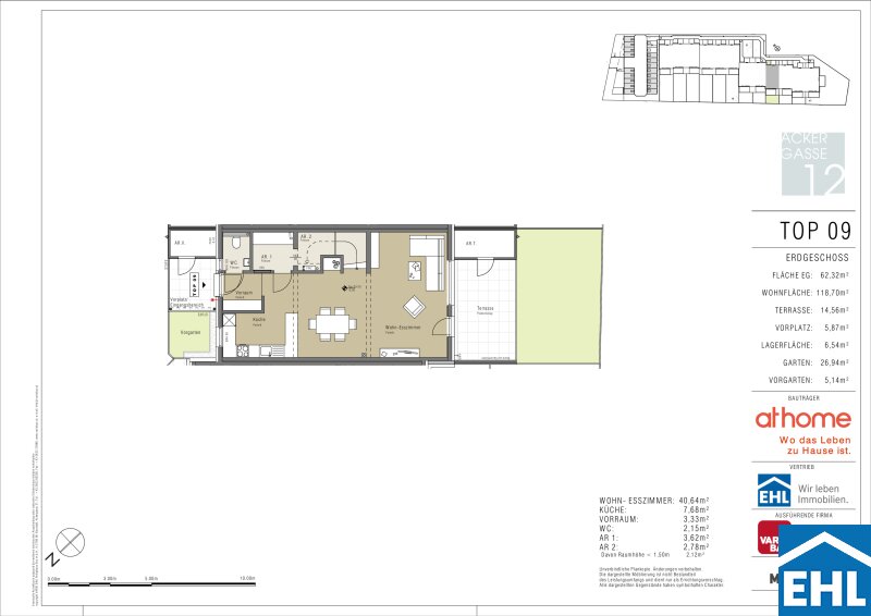
Durchdachte Architektur für mehr Wohnkomfort

Bereits bei der Planung wurde auf Nachhaltigkeit, Funktionalität und ein harmonisches Raumkonzept geachtet. Die Häuser erstrecken sich über zwei Etagen und bieten auf rund 118 m² Wohnfläche eine ideale Aufteilung:

  • Erdgeschoss: Ein großzügiger, lichtdurchfluteter Wohnbereich mit direktem Zugang zur Terrasse und dem liebevoll gestalteten Garten – Ihr persönlicher Rückzugsort im Grünen.
  • Obergeschoss: Drei ruhige Schlafzimmer sowie zwei moderne Bäder schaffen eine private Wohlfühloase.
  • Vorgärten: Einladende Eingangsbereiche sorgen für einen warmen Empfang.

Dank der Südost-Ausrichtung profitieren Sie von lichtdurchfluteten Räumen, die mit großen Fensterfronten eine offene und einladende Atmosphäre schaffen.

Ihr neues Zuhause auf einen Blick

  • 12 Reihenhäuser in ökologischer Holzrahmenbauweise
  •  Großzügige Wohnflächen mit ca. 118 m“
  •  Vorgärten, große Terrassen & weitläufige Gärten
  • 3 Schlafzimmer, 2 Bäder, viel Stauraum
  • 19 PKW-Stellplätze
  • Geplante Fertigstellung: November 2024

Hochwertige Ausstattung für zeitgemäßes Wohnen

  • Edle Parkettböden in den Wohnräumen
  • Moderne Fliesen in den Bädern
  • Hochwertige Sanitärausstattung
  • Fenster mit 3-fach-Isolierverglasung
  • Elektrischer Sonnenschutz
  • Glasfaser-Internet (A1 & Magenta)
  • Fußbodenheizung über Fernwärme
  • Vorbereitung für Photovoltaik, Klimaanlage & Alarmanlage

Attraktive Lage mit bester Infrastruktur

Die Nähe zum Wiener Neustädter Kanal schafft eine perfekte Verbindung von Natur und urbanem Leben. Zahlreiche Freizeitmöglichkeiten, Schulen, Kindergärten und Einkaufsmöglichkeiten befinden sich in unmittelbarer Umgebung. Die hervorragende Anbindung an das öffentliche Verkehrsnetz – inklusive direkter Verbindung zum Bahnhof Civitas Nova – sorgt für maximale Flexibilität.

  • Förderbar & provisionsfrei für Käufer!
  • Voraussichtliche Betriebskosten: ca. 1,50 €/m² netto
  • Nähere Informationen zur Wohnbauförderung NÖ finden Sie hier!

Nutzen Sie diese Gelegenheit und sichern Sie sich eines der begehrten Reihenhäuser!

© 2025, PROPERTY PHOTOS

Wir weisen darauf hin, dass zwischen dem Vermittler und dem zu vermittelnden Dritten ein familiäres oder wirtschaftliches Naheverhältnis besteht.

Der Immobilienmakler erklärt, dass er – entgegen dem in der Immobilienwirtschaft üblichen Geschäftsgebrauch des Doppelmaklers – einseitig nur für den Vermieter tätig ist.

Infrastruktur / Entfernungen

Gesundheit
Arzt <1.500m
Apotheke <1.000m
Klinik <3.500m
Krankenhaus <2.000m

Kinder & Schulen
Schule <500m
Kindergarten <750m
Höhere Schule <2.500m
Universität <1.250m

Nahversorgung
Supermarkt <500m
Bäckerei <1.000m
Einkaufszentrum <1.000m

Sonstige
Bank <1.000m
Geldautomat <1.000m
Post <750m
Polizei <500m

Verkehr
Bus <500m
Autobahnanschluss <4.250m
Bahnhof <500m
Flughafen <1.500m

Angaben Entfernung Luftlinie / Quelle: OpenStreetMap

Zuletzt besuchte Einträge