300.000 Immobilien in Österreich
Österreichs größtes Immobilienportal

WOHNEN BEIM CASINOPARK

Angebot auf immoads
FMH
auf immi.at seit 03.11.2025
Kategorie Etagenwohnung
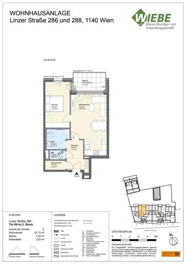
Adresse 1140 Wien
Wien 14.,Penzing
Wien
Preis EUR 396.500
Preis pro m2 EUR 6.956,14
Typ Kauf
provisionsfrei nein
Fläche 57m2
Räume 2

Erstbezug: Moderne Neubauwohnung mit hochwertiger Ausstattung

Raumaufteilung:

  • Vorraum
  • Wohnküche mit Ausgang auf die Loggia
  • Schlafzimmer
  • Abstellraum
  • Bad mit Dusche, Waschbecken, Handtuchwärmer, Waschmaschinenanschluss
  • extra WC mit Handwaschbecken

Die Niedrigenergiebauweise sorgt für leistbare moderate Heiz- und Warmwasserkosten:
Deckenheizung und -kühlung
Wärmepumpenanlage mit Geothermie (Tiefenbohrungen) und Sonnenkollektoren

Wohnen beim Casino-Park

Besichtigungen sind gegen Voranmeldung ab sofort möglich – wir freuen uns über Ihren Anruf!!!

Das Projekt
Die WIEBE Wiener Bauträger- und EntwicklungsgesmbH hat in der Linzer Straße eine neue Wohnhausanlage mit 34 Eigentumswohnungen samt dazugehöriger hauseigener Tiefgarage mit 23 Stellplätzen errichtet.

Wohnungsgrößen
2 - 4 Zimmer-Wohnungen, für jede Lebenslage ist etwas dabei, ideale Freiräume wie Loggia, Terrasse oder Garten.

Die Details
Ein straßenseitiges Wohngebäude mit 31 Wohnungen mit 2-4 Zimmern, zusätzlich wird ein Einzelhaus mit 4 Zimmern, sowie ein Doppelhaus mit zwei 4-Zimmer Maisonette-Wohnungen und integrierten Büros errichtet. Die Wohnungen werden Schlüsselfertig übergeben. Das Angebot wird den unterschiedlichsten Ansprüchen mehr als gerecht: geschmackvolle Ausstattung, die Verwendung von erstklassigen Materialien durchdachte Raumaufteilung und Parkettböden in den Wohnräumen. Sämtliche Wohnungen verfügen über attraktive Freiflächen wie Balkone oder Terrassen sowie nette Eigengärten im Erdgeschoß.

Stellplätze in der hauseigenen Tiefgarage können ab € 34.500,-- dazu gekauft werden.

Die Fenster erhalten einen außenliegenden Sonnenschutz in Form von Raffstores.
Ausnahme: Die straßenseitigen Fenster im 1. Dachgeschoß verfügen über eine Tuchbeschattung.
Die Bedienung erfolgt mittels Funkfernbedienung.

Die barrierefreie Erreichbarkeit der Wohnungen vom Keller bis zur jeweiligen Wohnetage wird durch die Liftanlage ermöglicht.

Die Infrastruktur
Das Projekt bietet eine sehr gute Infrastruktur durch Nahversorger des täglichen Bedarfs in der unmittelbaren Umgebung, zahlreiche Geschäfte entlang der Hütteldorfer Straße bzw. die Shoppingmall Auhofcenter mit seinem großen Angebot an Gastronomie und Entertainment; die Volksschule in der Hochsatzengasse liegt in Gehweite, höhere Schulen sind mit Öffis leicht zu erreichen.
Eine ausgezeichnete öffentliche Verkehrs-Anbindung ist durch die Straßenbahnlinie 52 gegeben, welche sich fast direkt vor der Haustüre befindet, ebenso die Autobuslinie 47A, die Sie zur U4-Station Ober St.Veit bringt. Ein paar Schritte weiter gelangt man zur Linie 49, die wiederum eine Anbindung an die U3 ermöglicht. Auch die A1-Autobahnauffahrt Auhof liegt nicht weit entfernt

Der Zeitplan:
Die Wohnungen können kurzfristig bezogen werden.

 

 

Energiedaten:
 Energieausweis: liegt vor
 HWB: 26,10
 HWB Klasse: B

]]>

Zuletzt besuchte Einträge