300.000 Immobilien in Österreich
Österreichs größtes Immobilienportal

Stilvolles Einfamilienhaus in ruhiger, zentraler Lage

Angebot auf immoads
auf immi.at seit 13.11.2025
Kategorie Haus
Adresse 8430 Leibnitz
Leibnitz
Steiermark
Preis EUR 449.000
Preis pro m2 EUR 2.953,95
Typ Kauf
provisionsfrei nein
Fläche 152m2
Räume -

Dieses stilvolle Einfamilienhaus verfügt über eine Grundfläche von 447 m2 und bietet auf 152 m2 Nutzfläche ausreichend Platz für ihre individuelle Entfaltung.

Besonders hervorzuheben ist die südwestlich ausgerichtete, überdachte Terrasse – der perfekte Ort, um entspannte Stunden im liebevoll angelegten und gepflegten Garten zu genießen.

Im EG. des Hauses finden sie eine gut ausgestattete Vollholzküche inkl. Elektrogeräte, ein Esszimmer, ein Wohnzimmer mit einem wunderschönen Kachelofen, sowie ein Bad mit Dusche und ein separates WC.

Im oberen Stock befinden sich eine Galerie, ein Arbeitszimmer sowie zwei Schlafzimmer, ein Bad mit Eckbadewanne und ein zusätzliches WC.

Die im Jahr 2024 erneuerte moderne Zentralheizung mit Fernwärme sorgt für angenehme Wärme und Komfort in allen Räumen.

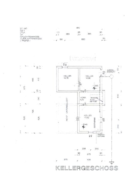
Der Keller gliedert sich in einen Vorraum, zwei Kellerräume – in einem davon befindet sich eine Sauna – und einen Technikraum.

Im Außenbereich befindet sich ein ca. 10 m2 großes Nebengebäude, das als Holzlager oder für andere Nutzungen dienen kann. Zusätzlich steht ihnen ein praktisches Carport zur Verfügung.

Das Haus besticht durch seine ruhige und dennoch zentrale Lage. Der Bahnhof sowie das Stadtzentrum sind in wenigen Gehminuten erreichbar, sodass sie von einer ausgezeichneten Anbindung an den öffentlichen Nahverkehr und von vielfältigen Einkaufsmöglichkeiten und Freizeitangeboten profitieren.

Die Umgebung zeichnet sich durch eine hervorragende Infrastruktur aus. In der unmittelbaren Nähe befinden sich Kindergärten, Schulen, Ärzte sowie ein Krankenhaus – ideal für Familien und alle, die eine gute Erreichbarkeit wichtiger Einrichtungen schätzen.

Die Anbindung an die Autobahnauffahrt Leibnitz ist ebenfalls schnell und unkompliziert.

Dieses liebevoll gepflegte Heim verbindet stilvolles Wohnen mit einer exzellenten Lage und ist die ideale Wahl für alle, die sowohl Ruhe als auch eine gute Anbindung schätzen.

Infrastruktur / Entfernungen

Gesundheit
Arzt <500m
Apotheke <1.000m
Krankenhaus <1.500m

Kinder & Schulen
Schule <1.000m
Kindergarten <1.000m
Höhere Schule <1.500m

Nahversorgung
Supermarkt <1.500m
Bäckerei <1.500m
Einkaufszentrum <1.000m

Sonstige
Bank <1.000m
Geldautomat <1.000m
Post <1.000m
Polizei <500m

Verkehr
Bus <500m
Autobahnanschluss <3.500m
Bahnhof <500m

Angaben Entfernung Luftlinie / Quelle: OpenStreetMap

Zuletzt besuchte Einträge