300.000 Immobilien in Österreich
Österreichs größtes Immobilienportal

ERSTBEZUG nach Sanierung | Außergewöhnliches Loft mit Raumhöhe bis zu ca. 4,90 m | Büro/Praxis Nutzung und Kurzzeitvermietung möglich

Zurück zu den Suchergebnissen
Angebot auf immoads
FMH
auf immi.at seit 02.03.2023
Kategorie Loft/Studio/Atelier
Adresse 1210 Wien
Wien 21.,Floridsdorf
Wien
Preis EUR 545.000
Preis pro m2 EUR 5.736,84
Typ
provisionsfrei nein
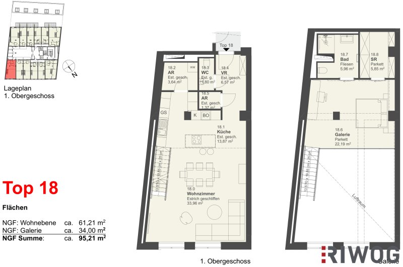
Fläche 95m2
Räume 2

In zentraler Ruhelage des 21. Bezirksentstanden im Zuge der Sanierung eines spannenden Architekturdenkmals besonders exzeptionelle Loft‐Wohnungen(teilweise mit Freiflächen) mit enormen Raumhöhen, offenen Galerieflächen und viel Licht. Die Wohnungen eignen sowohl zur Eigennutzung als auch als Anlage. Zusätzlich ist gemäß dem Wohnungseigentumsvertrag eine Nutzung als Büro oder Praxis oder auch als Serviced-Apartment (Kurzzeitvermietung) bzw. Ferienwohnung zulässig. 

Die Liegenschaft wurde 1931-1933 von Eugen Kastner und Fritz Waage im sogenannten „Internationalen Stil“ erbaut. Erst als Dorotheum dann als Bowlingcenter genutzt, wird das Gebäude jetzt als Wohn- und Apartmenthaus wieder zum Leben erweckt.

Das denkmalgeschützte Gebäude umfasst rund 3.900  Nutzfläche und wurde komplett auf Neubau-Standard saniert

Das Gebäude liegt nur wenige Schritte vom Floridsdorfer Markt entfernt, wo sämtliche Güter des täglichen Bedarfs angeboten werden, Freitag und Samstag sogar frisch vom Bauernhof. Das Zentrum von Floridsdorf mit allen Ämtern, Dienstleistern und Geschäften liegt praktisch um die Ecke. Nur einen kurzen Fußweg entfernt ist auch der Bahnhof Floridsdorf mit vielen Bahn‐, Bus‐ und U‐Bahnverbindungen. Die Wiener Innenstadt oder der Hauptbahnhof sind mit öffentlichen Verkehrsmitteln in ca. 20 Minuten schnell und bequem erreichbar. Auch zum Flughafen sind auf Grund der Direktverbindung nur 35 Minuten Fahrzeit einzuplanen.

In wenigen Minuten erreichen Sie zu Fuß oder mit dem Rad die Naherholungsgebiete wie die Alte Donau, den Wasserpark und die Donauinsel.

PROJEKT

  • Nur noch 3 Lofts (1 Loft mit Balkon) verfügbar!
  • Wohnnutzflächen zwischen 95 und 96 
  • Jeweils ein großzügiger Wohn- und Essbereich und eine Galerie mit Schlafbereich inkl. eigenem Schrankraum
  • Raumhöhen bis zu ca. 4,90 m

HIGHLIGHTS

  • Heizung und Warmwasseraufbereitung mittels Fernwärme – Fußboden‐/Wandheizung
  • Dielen-Parkett im Galerie-Bereich 
  • Balkone mit Plattenbelag
  • Geschmackvolle Fliesen sowie Marken Armaturen und Keramiken in den Sanitärräumen 
  • Gäste‐WC in jeder Wohnung
  • Kellerabteil zu jeder Wohnung
  • Storage‐Einheiten im Stockwerk
  • Innenliegende Stoffrollos an den Fenstern
  • Kinderwagen- und Fahrradabstellraum
  • Kinderspiel- und Gemeinschaftsraum
  • Nutzung als Büro oder Praxis oder zur Kurzzeitvermietung (Serviced-Apartment bzw. Ferienwohnung) lt. WE-Vertrag möglich
  • Direkt beim Floridsdorfer Markt
  • Bahnhof Floridsdorf (S-Bahn und U-Bahn) in ca. 5 Geh-Minuten erreichbar
  • Alte Donau, Floridsdorfer Wasserpark und die Donauinsel schnell erreichbar

INFOS ZUM LOFT

  • WOHNNUTZFLÄCHE:ca. 95,21 m²
  • AUFTEILUNG: Wohn- und Essbereich und Galerie mit Schlafbereich
  • AUSRICHTUNG: Nordost
  • GESCHOSS: 1. + 2. Obergeschoss (Galerie)
  • RAUMHÖHE: Bis zu ca. 4,90 m

Bezugsfertig!

Betriebskosten folgen!

Kaufpreis Anleger (netto):
 € 545.000,00 zzgl. 20% USt.
Kaufpreis Eigennutzer: € 599.000,00

Provision: 3% vom Kaufpreis zzgl. 20% USt. 

Vertragserrichter: Dr. Stefan Malainer (1,5% v.KP. zzgl. 20% Ust. zzgl. Barauslagen zzgl. etwaigen Beglaubigungskosten exkl. Kosten bei Übernahme einer Treuhandschaft gegenüber einem finanzierenden Kreditinstitut) - Abwicklung nach BTVG (Bauträgervertragsgesetz)

Bei den Fotos handelt es sich um Fotos der darüberliegenden Top 30 mit gleichem Grundriss und gleicher Ausstattung.

Zusätzlich handelt es sich bei den Fotos teilweise um KI-gestagte Bilder.

Wir freuen uns auf Ihre schriftliche Anfrage, um Ihnen dieses einzigartige Projekt näher bringen zu dürfen. 

Wir weisen darauf hin, dass zwischen dem Vermittler und dem zu vermittelnden Dritten ein familiäres oder wirtschaftliches Naheverhältnis besteht.

Der Vermittler ist als Doppelmakler tätig.

Infrastruktur / Entfernungen

Gesundheit
Arzt <125m
Apotheke <325m
Klinik <825m
Krankenhaus <800m

Kinder & Schulen
Schule <450m
Kindergarten <350m
Universität <725m
Höhere Schule <750m

Nahversorgung
Supermarkt <225m
Bäckerei <300m
Einkaufszentrum <375m

Sonstige
Geldautomat <200m
Bank <200m
Post <25m
Polizei <375m

Verkehr
Bus <225m
U-Bahn <275m
Straßenbahn <225m
Bahnhof <500m
Autobahnanschluss <625m

Angaben Entfernung Luftlinie / Quelle: OpenStreetMap

Zuletzt besuchte Einträge