300.000 Immobilien in Österreich
Österreichs größtes Immobilienportal

Einmalige Gelegenheit! Gut geführter Skiverleih zur Miete, Shop/Skidepot in Skiliftnähe in Saalbach!

Angebot auf Scout24
auf immi.at seit 16.10.2019
Kategorie Geschäftslokal
Adresse 5753 Saalbach-Hinterglemm
Zell am See
Salzburg
Preis EUR 5.372
Preis pro m2 EUR 19,12
Typ Miete
provisionsfrei nein
Fläche 281m2
Räume -

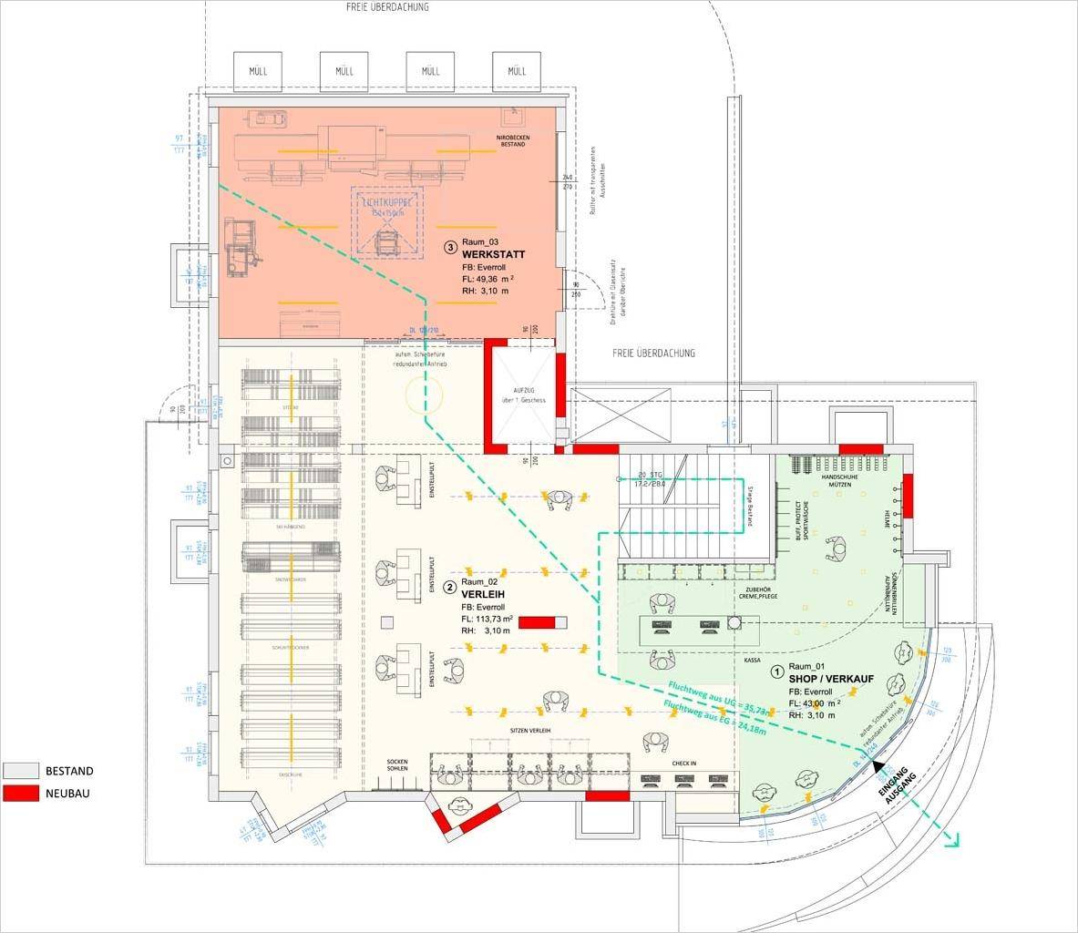
BESONDERE GELEGENHEIT! Zur VERMIETUNG steht ein bestens eingeführter, neuwertiger SKIVERLEIH in Top-Lage! Der von uns angebotene Skiverleih, mit ingsesamt ca. 440 m² Nutzfläche, liegt direkt an der Glemmtaler Landesstrasse, die Sie nach Saalbach/Hinterglemm führt, und in unmittelbarer Nähe der Schönleitenbahn, dem Einstieg in den Schicircus Saalbach-Hinterglemm-Leogang-Fieberbrunn! Durch den geplanten Zusammenschluß mit der Schiregion Zell am See/Kaprun wird speziell für den Ortsteil Saalbach/Jausern eine noch höhere Frequenz erwartet. Durch die sehr erfolgreiche Entwicklung des Downhill- und Mountainbike-Sports in den Orten Leogang und Hinterglemm, sowie der generell aufsteigende Trend im E-Bike-Sektor, kann auch der Sommer eine interessante Einnahmequelle darstellen. Der Betrieb wurde erst vor wenigen Jahren komplett neu, im modernen, qualitativ hochwertigen Design eingerichtet und mit Geräten auf höchstem, technischen Niveau ausgestattet, und wird seither erfolgreich geführt. Die Gewerbefläche verteilt sich über 2 Geschoße und insgesamt 437,46 m² Nutzfläche und bietet einen attraktiven Shop-Bereich, mit moderner Registrierkasse, Skikarten-Verkauf, einem großen Ski-Verleih mit ca. 400 Paar Skiern, angrenzendem Service-Bereich, mit hochwertigen Maschinen, sowie ein großes Skidepot mit mehr als 300 Einheiten, eine "Beauty-Station" mit großem Schminkspiegel sowie Sanitäranlagen für Kunden und Personal. Interessante Zukunftsperspektive: Gemeinsam mit dem Eigentümer wird ein attraktives Hotelprojekt, mit insgesamt ca. 120 Betten geplant, in das der Schiverleih nahtlos integriert, und ein fixer Bestandteil des Hotels sein wird. Die Realisierung dieses Projekts ist für das Jahr 2021 geplant. Basiskonditionen für die Vermietung: • es gibt prinzipiell 2 Varianten der Vereinbarung • Variante 1, basiert auf die monatliche Miete von € 5.372,-- netto zuz. der obligatorischen Übernahme der Ware und Verleihartikel. Alle Geräte und sonstiges Inventar verbleiben im Eigentum des Verpächters • Variante 2: Inventar und Ausrüstung werden anteilsmäßig in die Miete eingerechnet. Monatliche MIete somit € 8.039,-- netto, und gehen nach Ablauf der 10 Jahre in das Eigentum des Mieters über. - für beide Varianten ist ein 10-Jahres MIetvertrag Voraussetzung

Zuletzt besuchte Einträge