300.000 Immobilien in Österreich
Österreichs größtes Immobilienportal

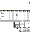
3-Zimmer-Gartenwohnung I Top A04

Angebot auf Scout24
auf immi.at seit 19.12.2019
Kategorie Wohnung
Adresse 6800 Feldkirch
Feldkirch
Vorarlberg
Preis EUR 449.000
Preis pro m2 EUR 5.612,50
Typ Kauf
provisionsfrei nein
Fläche 80m2
Räume 3

Im Feldkircher Stadtteil Tisis errichtet die i+R Wohnbau GmbH in naturnaher Lage eine hochwertige Wohnanlage mit drei Wohnhäusern. Durch die Hanglage sowie die Anordnung der Wohnhäuser ergeben sich schöne Aus- und Weitblicke, welche vor allem in den Dachgeschosswohnungen und im Penthouse beeindrucken.​Das ProjektDrei Wohnhäuser mit fünf bzw. acht Wohnungen2-, 3 und 4-ZimmerwohnungenPenthäuserHochwertige Architektur (Architekturbüro Nachbaur Wörter Architekten zt GmbH, Schwarzach)Überdachte Terrassen mit Mittags- und/oder AbendsonneRaumhohe VerglasungBarrierefrei mit LiftTiefgarageDie BauweiseMassivbauweiseUmweltfreundliches Energiesystem mittels ErdwärmePhotovoltaikVorbehandelte, hinterlüftete HolzfassadeHolzfenster und Rahmentüren mit 3-fach-IsolierverglasungDie solide Bauweise ist uns als traditionelles Bauunternehmen besonders wichtig. Denn sie ist das Fundament, damit Sie lange Freude mit Ihrer Wohnung haben. Einen kurzen Überblick der Bauweise haben wir für Sie zusammengestellt.Die Ausstattung Neben unserer sorgfältig ausgewählten Grundausstattung haben wir auch einen Küchenplan ausgearbeitet. Als traditionelles Familienunternehmen haben wir einen hohen Anspruch an die Qualität in der Planung, Bauausführung und Kundenbetreuung. Erfahren Sie, was uns als Partner im Wohnungskauf ausmacht.Fragen zur Finanzierung? Unser Beraterteam unterstützt Sie gerne.

Zuletzt besuchte Einträge