300.000 Immobilien in Österreich
Österreichs größtes Immobilienportal

Glücksbringer

Zurück zu den Suchergebnissen
Angebot auf Scout24
auf immi.at seit 05.02.2020
Kategorie Haus
Adresse 5225 Jeging
Braunau am Inn
Oberösterreich
Preis EUR 356.000
Preis pro m2 EUR 3.423,08
Typ Kauf
provisionsfrei nein
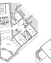
Fläche 104m2
Räume 4

In herrlich grüner Lage entstehen in der familiären Gemeinde Jeging fünf komfortable 105 m² große Reihenhäuser, eine charmante 76 m² 3-Zimmer-Terrassen- und eine großzügige 52 m² 2-Zimmer-Gartenwohnung mit Hauscharakter. Alle Wohnperlen sind ideal nach Südwesten orientiert und vereinen modernen Komfort mit zeitlos schöner Ausstattung und dem besonderen Charme des Landlebens. Zum Verlieben schön ist der malerische Ausblick auf saftige Wiesen, Felder und Wälder. Dank dem offenen, lichterfüllten Wohnambiente fühlen Sie sich sofort zu Hause. Kommunikatives Zentrum ist die offene Küche. Auch der geräumige Wohn-Ess-Bereich lädt zu geselligem Beisammensein mit Ihren Liebsten ein. Wahre Relaxoasen sind die ruhigen Schlafzimmer und die eleganten Bäder. Die angenehm großen, sonnenverwöhnten Terrassen laden zu einer Auszeit in der frischen, wunderbar sauberen Landluft ein. Hobbygärtner leben in den bis zu 147 m² großen Gärten ihren Traum. EA i. A.

Zuletzt besuchte Einträge