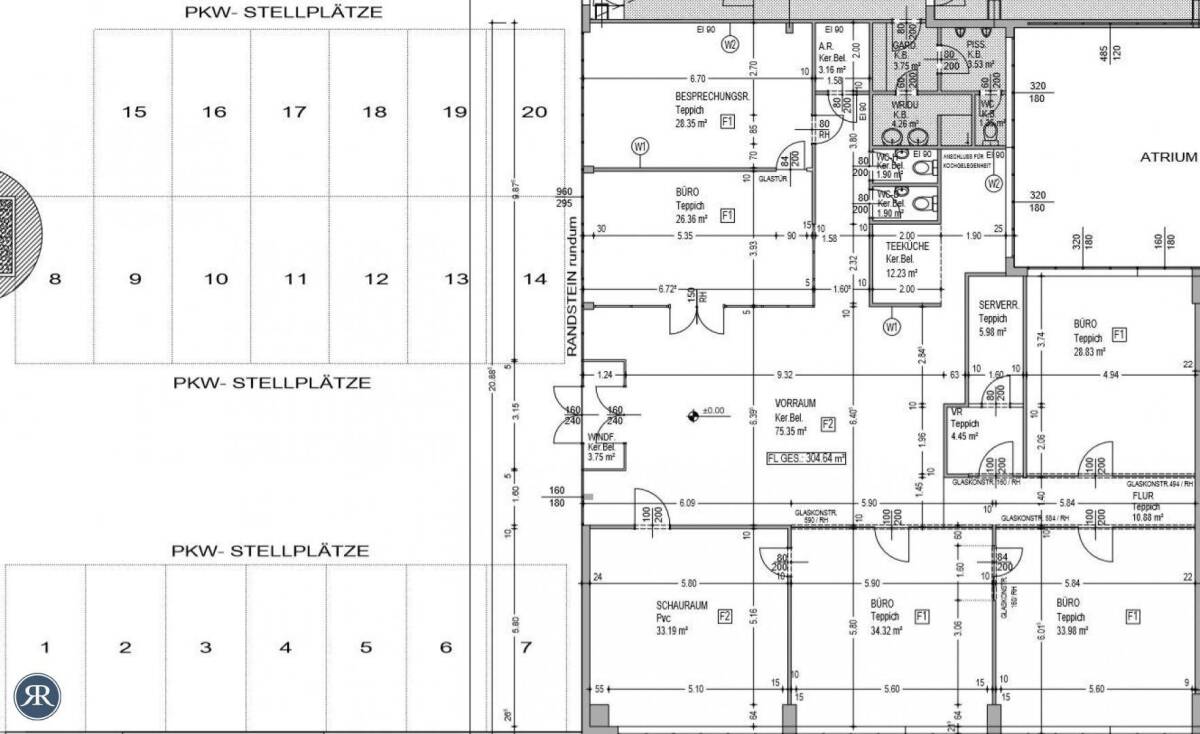
Bürofläche mit 304m² im 22., Nähe U1 Aderklaaer Straße und Rennbahnweg
| Angebot auf | Scout24 |
| auf immi.at seit | 26.03.2020 |
| Kategorie | Gewerbe, Büro, Praxis |
| Adresse | 1220 Wien Wien 22.,Donaustadt Wien |
| Preis | EUR 3.503 |
| Preis pro m2 | EUR 11,49 |
| Typ | Miete |
| provisionsfrei | nein |
| Fläche | 305m2 |
| Räume | - |
Bürofläche mit 304m² im 22., Nähe Aderklaaer Straße und Rennbahnweg.Die Bürofläche befindet sich im EG. Flexible Raumgestaltung möglich. Die Ausstattung entspricht den modernen Standards:Teppichbelag im Büro und PVC-Belag im Lager,abgehängte Decke mit integrierten Spiegelrasterleuchten, flexible Gipskartonwände, Leerverrohrung für Verkabelung vorhanden, WC, Teeküche.6 Stellplätze sind in der Miete inkludiert.Für weitere Informationen steht ihnen Frau Manja Mietho unter 0660-4959007 oder unser Büro unter 01-4022888 gern zur Verfügung.Der guten Ordnung halber halten wir fest, dass bei erfolgreichem Abschlussfall mit einem von uns genannten Objekt bzw. Kunden eine Provision anfällt, die den in der aktuell gültigen Immobilienmaklerverordnung (IMV 1996) festgelegten Sätzen entspricht - das sind 3 Monatsmieten zzgl. 20% USt..Bitte beachten Sie, dass wir aufgrund der Nachweispflicht gegenüber dem Eigentümer nur Anfragen mit Angabe Ihrer Kontaktdaten mit Name, Telefonnummer und Anschrift bearbeiten können.Infrastruktur / EntfernungenGesundheit Arzt <1.000m Apotheke <1.000m Klinik <5.000m Krankenhaus <4.500m Kinder & Schulen Schule <500m Kindergarten <500m Universität <2.500m Höhere Schule <2.000m Nahversorgung Supermarkt <500m Bäckerei <1.000m Einkaufszentrum <1.000m Sonstige Bank <1.000m Geldautomat <1.000m Post <1.000m Polizei <1.000m Verkehr Bus <500m U-Bahn <1.000m Straßenbahn <1.500m Bahnhof <1.000m Autobahnanschluss <1.000m Angaben Entfernung Luftlinie / Quelle: OpenStreetMap