300.000 Immobilien in Österreich
Österreichs größtes Immobilienportal

Sonnige 4-5 ZimmerwohnungGries am Brenner

Angebot auf Scout24
auf immi.at seit 06.06.2020
Kategorie Wohnung
Adresse 6156 Gries am Brenner
Innsbruck-Land
Tirol
Preis EUR 240.201
Preis pro m2 EUR 3.874,21
Typ Kauf
provisionsfrei nein
Fläche 62m2
Räume 3

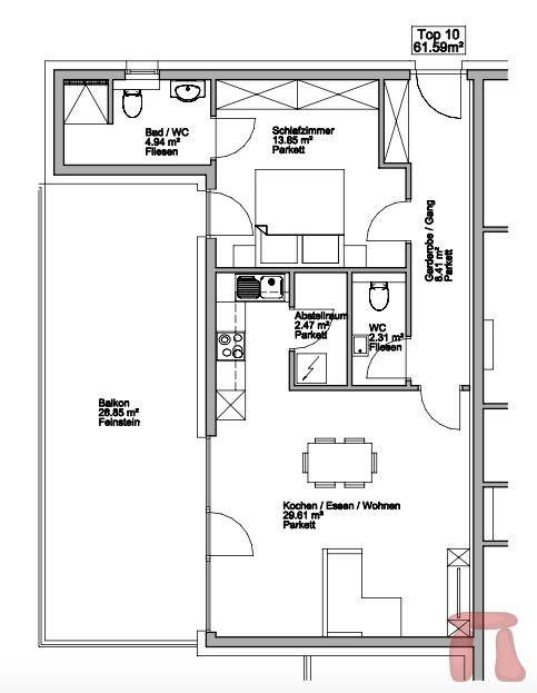
Bauvorhaben: Im Zentrum von Gries am Brenner wird auf 1089 m2 Grundfläche eine ansprechende, gediegene viergeschoßige Kleinwohnanlage errichtet mit 11 Wohneinheiten und Tiefgarage nach den Plänen des Architekten. Diese großzügige 2 Zimmerwohnung verfügt über 1 Schlafzimmer, ein großes Wohnzimmer mit offener Küche (über 29 m2), Bad, separates WC und einen Abstellraum/Speis. gesamt 61,59 m2 + eine herrlich sonnige Süd-West-Terrasse mit 28 m2. Die vorläufigen Betriebskosten werden auf 2,8 €/m2 inkl. Heizung bei durchschnittlichem Verbrauch eingestuft. Planungswünsche können jetzt gerne noch berücksichtigt werden. Der vorläufige Baubeginn ist Herbst 2020, die geplante Bauzeit beträgt ca. 15 Monate. Es wird auf ein wirtschaftliches Naheverhältnis zum Verkäufer/Bauträger hingewiesen. Sonstige Nebenkosten: Vermittlungsprovision zzgl. 20% MwSt., Grunderwerbsteuer 3,5%, Grundbucheintragungsg. 1,1%, Vertragserrichtungskosten nach Vereinbarung Sie wollen Ihre Immobilie vermieten oder verkaufen? Wir stehen Ihnen gerne zur Seite und beraten Sie!   Meilenstein Realitäten GmbH A-6020 Innsbruck | Maria-Theresien-Straße 34 Kostenfreie Servicenummer 0800 221 750

Zuletzt besuchte Einträge