300.000 Immobilien in Österreich
Österreichs größtes Immobilienportal

4 % Rendite

Angebot auf Scout24
auf immi.at seit 08.07.2020
Kategorie Wohnung
Adresse 2500 Baden
Baden
Niederösterreich
Preis EUR 249.000
Preis pro m2 EUR 3.192,31
Typ Kauf
provisionsfrei nein
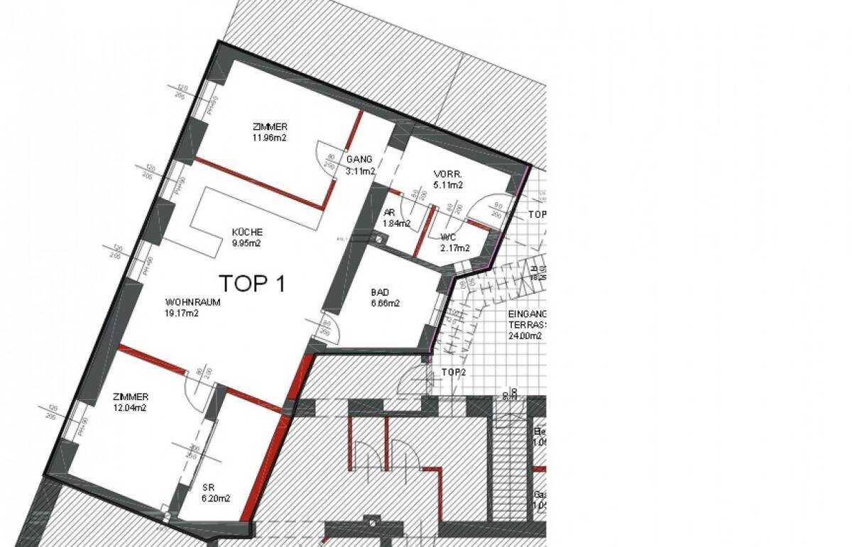
Fläche 78m2
Räume 4

Hier gelangt eine neue Wohnung in komplett saniertem Mehrfamilienhaus mit 4 Wohneinheiten zum VerkaufDiese Wohnung teilt sich wie Folgt auf• Vorraum• Kinderzimmer• Schlafzimmer mit Schrankraum• Wohnzimmer mit Küche• Bad und WC getrennt• AbstellraumDie Wohnung ist zur Zeit vermietet, der Mietvertrag kann verlängert werden.Gute Infrastruktur (Supermärkte, Öffentliche Verkehrsmittel, Kindergarten, Schule) im Umkreis von 5 Gehminuten.Für Fragen oder Besichtigungen können Sie mich gerne jederzeit Kontaktieren.IHRE IMMOBILIENTRÄUME - UNSER ZIEL!!!Die Angaben erfolgen aufgrund der Informationen und Unterlagen, welche uns vom Abgeber oder dessen Beauftragten zur Verfügung gestellt wurden und sind ohne Gewähr!Aufgrund der Nachweispflicht gegenüber dem Eigentümer können wir nur Anfragen mit vollständigem Namen, Telefonnummer und Adresse bearbeiten!Infrastruktur / EntfernungenGesundheit Arzt <500m Apotheke <500m Klinik <2.000m Krankenhaus <500m Kinder & Schulen Schule <500m Kindergarten <500m Höhere Schule <8.500m Nahversorgung Supermarkt <500m Bäckerei <500m Einkaufszentrum <4.500m Sonstige Bank <500m Geldautomat <500m Post <500m Polizei <1.000m Verkehr Bus <500m Bahnhof <500m Autobahnanschluss <3.000m Straßenbahn <500m Flughafen <4.500m Angaben Entfernung Luftlinie / Quelle: OpenStreetMap

Zuletzt besuchte Einträge