300.000 Immobilien in Österreich
Österreichs größtes Immobilienportal

Traum Wohnung Neubezug 1190 Wien

Zurück zu den Suchergebnissen
Angebot auf Scout24
auf immi.at seit 22.07.2020
Kategorie Wohnung
Adresse 1190 Wien
Wien 19.,Döbling
Wien
Preis EUR 289.068
Preis pro m2 EUR 7.050,44
Typ Kauf
provisionsfrei nein
Fläche 41m2
Räume 2

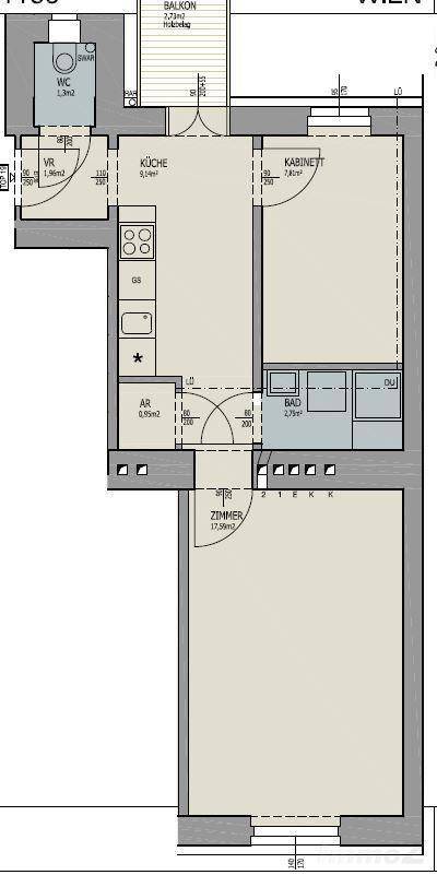
Mitten im beliebten 19. Bezirk entsteht ein Wohnprojekt  mit 24 Einheiten und Wohnflächen zwischen ca. 29 - 72 qm. Charmante 2 Zimmer Wohnung mit 2,73m² Balkon in wunderbarer  Lage.Neu Sanierten Gebäude. Sie verfügt über 2 Zimmer, einer getrennt begehbaren Küche einem Badezimmer, einem WC sowie einem Vorraum. . Beziehbar voraussichtlich Dezember 2020  Lift: ja  Küche: ja Betriebskosten sind noch nicht definert da das Gebäude mitten im Bau ist Wir bitten um Verständnis dafür, dass auf Grund der Nachweispflicht gegenüber dem Eigentümer nur Anfragen mit vollständigen Kontaktdaten (Name, Adresse, Tel., Email) beantwortet werden können. Rufen Sie mich an, ich informiere Sie gerne! Da es immer wieder zu Missverständnissen kommt, möchten wir Sie darüber informieren, dass ein Provisionsanspruch erst nach Unterzeichnung eines Miet- oder Kaufanbotes besteht. Eine Besichtigung ist nach wie vor unverbindlich und kostenlos! Dieses Objekt wird Ihnen unverbindlich und freibleibend angeboten. Oben angeführte Angaben basieren auf Informationen und Unterlagen des Eigentümers und sind unsererseits ohne Gewähr.Der Energierausweis wird  vom EIgentümer noch nachgereicht Wir dürfen gem. § 5 Maklergesetz darauf hinweisen, dass wir als Doppelmakler tätig sind und ein wirtschaftliches Naheverhältnis zu unseren Auftraggebern besteht. Das wirtschaftliche Naheverhältnis ergibt sich aus regelmäßiger geschäftlicher Verbindung. Nebenkosten: 3,5% Grunderwerbsteuer 1,1% Eintragungsgebühr 3,0% + 20% USt. Maklerprovision 2% + 20% USt. Vertragserrichtungsgebühr  Bemessungsgrundlage ist der Kaufpreis. Für weitere Fragen oder zur Vereinbarung eines Besichtigungstermin steht Ihnen Herr Alexander Bergmann unter +436643048084 oder a.bergmann@immo.express gerne zur Verfügung.  

Zuletzt besuchte Einträge