300.000 Immobilien in Österreich
Österreichs größtes Immobilienportal

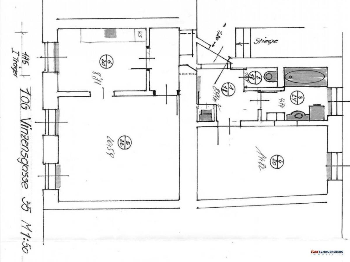
Neu sanierte Altbauwohnung

Angebot auf Scout24
auf immi.at seit 07.08.2020
Kategorie Wohnung
Adresse 8010 Graz
Graz(Stadt)
Steiermark
Preis EUR 637
Preis pro m2 EUR 10,98
Typ Miete
provisionsfrei nein
Fläche 58m2
Räume 2

Sanierte, ruhig gelegene 2-Zimmerwohnung in Eggenberg! Zimmer getrennt begehbar, Gasetagenheizung, Parkettböden, Küche eingerichtet Wohnbeihilfe ist möglich!Infrastruktur / EntfernungenGesundheit Arzt <500m Apotheke <500m Klinik <2.000m Krankenhaus <1.000m Kinder & Schulen Schule <500m Kindergarten <500m Universität <1.000m Höhere Schule <1.000m Nahversorgung Supermarkt <500m Bäckerei <500m Einkaufszentrum <1.500m Sonstige Bank <500m Geldautomat <500m Post <1.000m Polizei <1.000m Verkehr Bus <500m Straßenbahn <500m Autobahnanschluss <5.000m Bahnhof <1.000m Flughafen <10.000m Angaben Entfernung Luftlinie / Quelle: OpenStreetMap

Zuletzt besuchte Einträge