300.000 Immobilien in Österreich
Österreichs größtes Immobilienportal

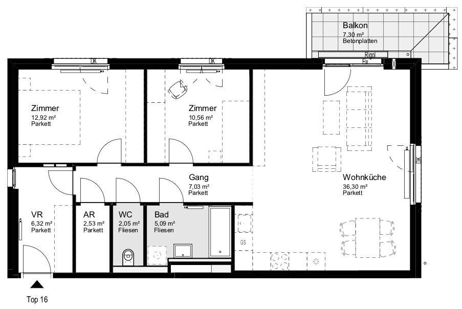
EMG 2/2 / TOP 16

Angebot auf Scout24
auf immi.at seit 01.09.2020
Kategorie Wohnung
Adresse 1210 Wien
Wien 21.,Floridsdorf
Wien
Preis EUR 905
Preis pro m2 EUR 10,90
Typ Miete
provisionsfrei nein
Fläche 83m2
Räume 3

Diese 3 Zimmer Wohnung mit Balkon befindet sich im 2. Obergeschoss des modernen Wohnhauses. Der Balkon ist vom Wohnbereich erreichbar. Insgesamt verfügt die Wohnung über 2 Schlafzimmer sowie über eine Wohnküche, ein Badezimmer mit Wanne, ein WC sowie einen geräumigen Abstellraum. Die benötigten Eigenmittel belaufen sich auf € 12.420.

Zuletzt besuchte Einträge