300.000 Immobilien in Österreich
Österreichs größtes Immobilienportal

Singlewohnung "All Inclusive"

Angebot auf Scout24
auf immi.at seit 01.09.2020
Kategorie Wohnung
Adresse 1160 Wien
Wien 16.,Ottakring
Wien
Preis EUR 550
Preis pro m2 EUR 20,37
Typ Miete
provisionsfrei nein
Fläche 27m2
Räume 1

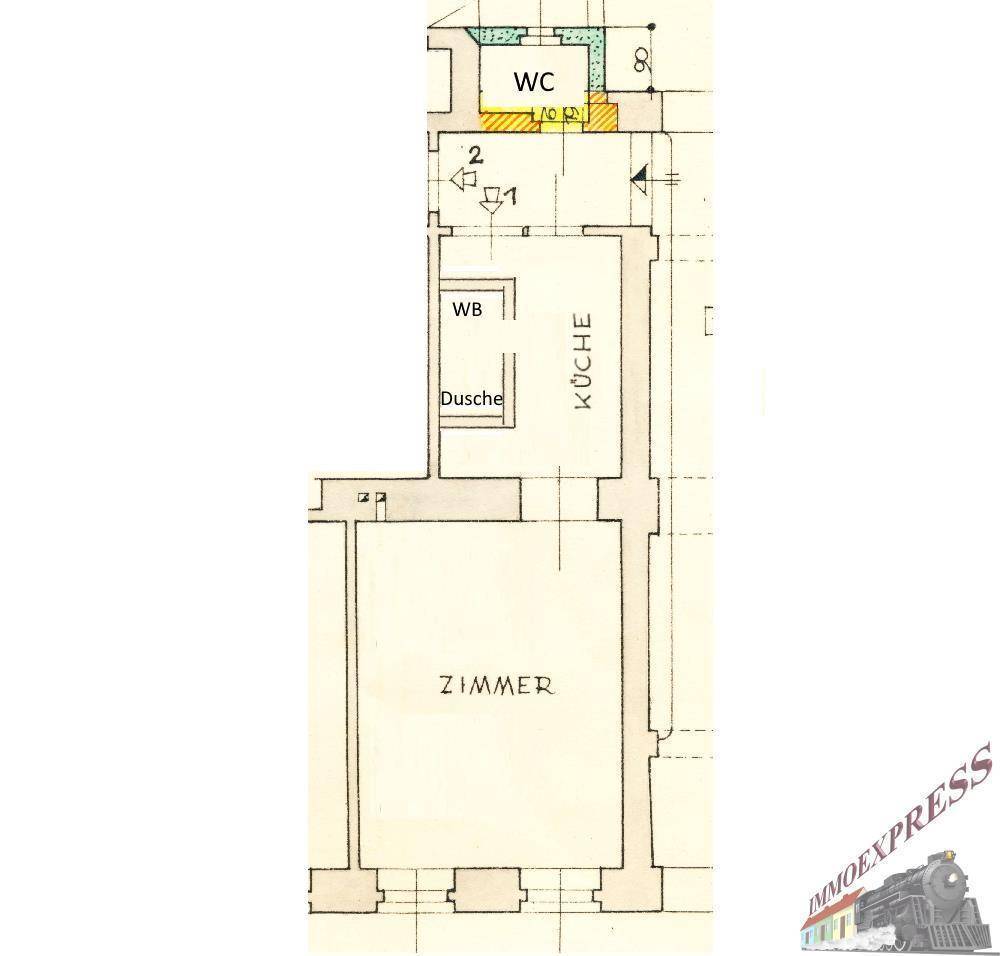
Singlewohnung, 26m² zu vermieten Die Wohnung besteht aus einem Wohnschlafzimmer, einer Küche und einer Dusche. Das WC befindet sich am Gang allerdings unmittelbar neben der Eingangstür und zur Alleinbenützung. Die Wohnung ist voll möbliert. Die Miete von 550.-- ist inklusive Heizung, Gas, Strom, Internet, Mitbenützung Garten und Hof. Infrastruktur: Die ums Eck gelegene Thaliastraße bietet von A-Z  alles was das Herz begehrt (Supermarkt, Apotheke, Banken, Boutiquen, Fast-Food usw.) Öffis: Keine 2 Gehminuten entfernt Linien 46,10A, 2, U3 Anfragen können nur und ausnahmslos nach schriftlicher Anfrage beantwortet werden. Mietnebenkosten: Kaution: 3 BMM Provision: 2 BMM Für weitere Fragen oder zur Vereinbarung eines Besichtigungstermin steht Ihnen Hr. Michael Kloiber  unter m.kloiber@immo.express gerne zur Verfügung. Rechtlicher Hinweis: Der Makler steht zum Abgeber in einem wirtschaftlichen bzw. familiären Naheverhältnis. Weiters weisen wir auf die Doppelmaklertätigkeit hin. Nähere Auskünfte zum Doppelmakler oder zum Nahverhältnis auf Anfrage gerne.  

Zuletzt besuchte Einträge