300.000 Immobilien in Österreich
Österreichs größtes Immobilienportal

Stiege 4 / Top 1

Angebot auf Scout24
auf immi.at seit 11.09.2020
Kategorie Wohnung
Adresse 1210 Wien
Wien 21.,Floridsdorf
Wien
Preis EUR 208.500
Preis pro m2 EUR 5.085,37
Typ Kauf
provisionsfrei nein
Fläche 41m2
Räume 1

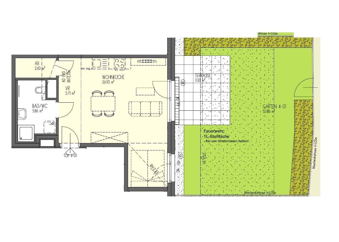
Diese 1 Zimmer Wohnung mit Garten befindet sich im Erdgeschoß des modernen Wohnkomplexes. Es werden Ihnen auf 40,93 m² Wohnfläche folgende Räumlichkeiten geboten: Die Wohnung besteht aus einem Vorraum, einem großen Wohnbereich inkl. Schlafnische, einem Badezimmer mit einer Dusche und einem WC sowie einem Abstellraum. An den Wohnbereich schließt eine Terrasse (ca. 11 m²) an. Direkt davor liegt Ihr eigener Garten, der zum Entspannen einlädt. Der Kaufpreis für diese Wohnung inkl. Garagenplatz beträgt € 208.500.--. Die aktuellen Hausbetriebskosten für die Wohnung und den Garagenplatz belaufen sich auf € 189,00 inkl. Baurechtszins. Die Wohnung verfügt über einen hochwertigen Parkettboden und modern ausgestattete Nassräume. Beheizt wird die Wohnung mit Fernwärmefußbodenheizung und ein Lift ist selbstverständlich vorhanden. Dieses Projekt wurde auf einem Baurechtsgrund errichtet. Wir freuen uns auf Ihren Anruf unter (01) 908 14 38 – 701 oder über Ihr Email an barbara.aigner@oevw.at Planänderungen vorbehalten - Die Einrichtung/Möblierung ist nicht Vertragsgegenstand WILLKOMMEN DAHEIM. 

Zuletzt besuchte Einträge