300.000 Immobilien in Österreich
Österreichs größtes Immobilienportal

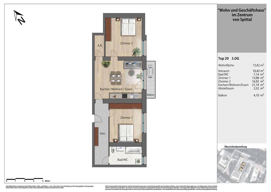
Moderne, barrierefreie Erstbezug Stadtwohnung - Zentrum Spittal

Angebot auf Scout24
auf immi.at seit 30.10.2020
Kategorie Wohnung
Adresse 9800 Spittal an der Drau
Spittal an der Drau
Kärnten
Preis EUR 880
Preis pro m2 EUR 11,89
Typ Miete
provisionsfrei nein
Fläche 74m2
Räume 3

Die barrierefreie, sehr helle und funktionell geplante Innenstadtfamilienwohnung im Erstbezug Top 20 befindet sich im dritten Stockwerk des Wohn- und Geschäftshauses - Hauptplatz 17. Die Wohnung besteht aus einem Vorraum samt Garderobe, einem Sanitärbereich mit WC & Dusche, zwei Schlafzimmer sowie einem großen Wohn-Essbereich samt Balkon und einer Küchenzeile. Zur Wohnung gehört ebenso noch ein separater ca. 8,5 m² großer, Abstellraum im selben Stockwerk.

Zuletzt besuchte Einträge