300.000 Immobilien in Österreich
Österreichs größtes Immobilienportal

JAKOMINI: WG-geeignet! 3-Zimmer-Stadtwohnung - ideal für Familien oder Studenten!

Angebot auf Scout24
auf immi.at seit 06.11.2020
Kategorie Wohnung
Adresse 8010 Graz
Graz(Stadt)
Steiermark
Preis EUR 895
Preis pro m2 EUR 11,33
Typ Miete
provisionsfrei nein
Fläche 79m2
Räume 3

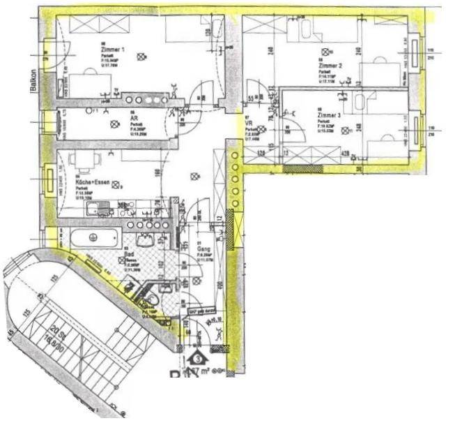
Die gemütliche 3-Zimmerwohnung verfügt über ca. 79,12 m2 Wohnfläche und gliedert sich in folgende Räumlichkeiten: - Vorzimmer - eine vom Wohnraum abgetrennte Küche mit Platz für eine Essgelegenheit - 3 weitere Zimmer - Abstellraum - Bad mit Badewanne und Waschmaschinenanschluss - separates WC mit Handwaschbecken Durch ihre optimale Raumaufteilung eignet sich diese Wohnung auch ideal als WG! Der Wohnung ist ein Kellerabteil zugeordnet. Die Bruttomiete setzt sich zusammen aus: Hauptmietzins, Betriebskosten und Umsatzsteuer. Heizkosten und Energiekosten sind nicht enthalten. Lage und Infrastruktur: Die sehr zentrale Lage bietet eine hervorragende Infrastruktur. Alle Geschäfte des täglichen Bedarfs sind fußläufig erreichbar. Nähe TU neue Technik, ca. 5 min Gehminuten zum Jakominiplatz, 20 min Gehminuten zur KF GBV-Linien 4+5 erreicht man in wenigen Minuten fußläufig Perfekt für Studenten geeignet ! Mietbeginn: ab sofort Mietdauer: unbefristet Weitere Immobilienangebote finden Sie unter www.rustler.eu/immobiliensuche

Zuletzt besuchte Einträge