300.000 Immobilien in Österreich
Österreichs größtes Immobilienportal

exklusive Neubauwohnung mit großem Garten

Angebot auf Scout24
auf immi.at seit 06.12.2020
Kategorie Wohnung
Adresse 5621 Sankt Veit im Pongau
Sankt Johann im Pongau
Salzburg
Preis EUR 950
Preis pro m2 EUR 11,18
Typ Miete
provisionsfrei ja
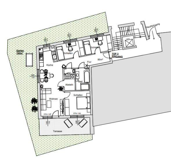
Fläche 85m2
Räume 3

Die Wohneinheit befindet sich in einem Mehrparteienwohnhaus mit insgesamt 9 Parteien. Die Wohnung befindet sich im Erdgeschoß und ist nach Süden und Westen ausgerichtet. Auf der Südseite ist eine große Terrasse (18m²) angebaut. Die Wohnung besitzt einen 192m² großer Garten, wo keine Wünsche offen bleiben. Die Wohnung besteht aus einem großzügigen hellen Wohn-, Küchen-, Essbereich, sowie 3 Schlafzimmern, Bad mit separaten WC und einem Abstellraum. Im Mietpreis ist bereits eine voll ausgestattete Küche mit allen E - Geräten (Geschirrspüler, Backrohr samt Ceranfeld, Dampfgarer und Kühlschrank) enthalten. Des Weiteren ist auch das Bad komplett möbliert (siehe Detailplan). Es stehen in der Tiefgarage 2 Stellplätze zur Verfügung. Ebenfalls befindet sich im Kellergeschoß ein Kellerabteil. Das Wohnhaus wird mit nach neuesten Stand der Technik mit einer Pelletsheizung samt PV- Anlage beheizt. Die Wohnung ist komplett mit einer Fußbodenheizung ausgestattet. Zusätzlich befindet sich im Bad ein Handtuchheizkörper.

Zuletzt besuchte Einträge