300.000 Immobilien in Österreich
Österreichs größtes Immobilienportal

schöne helle 3 Zimmer direkt am Inn

Angebot auf Scout24
auf immi.at seit 17.12.2020
Kategorie Wohnung
Adresse 6330 Kufstein
Kufstein
Tirol
Preis k.A.
Preis pro m2 k.A.
Typ Miete
provisionsfrei nein
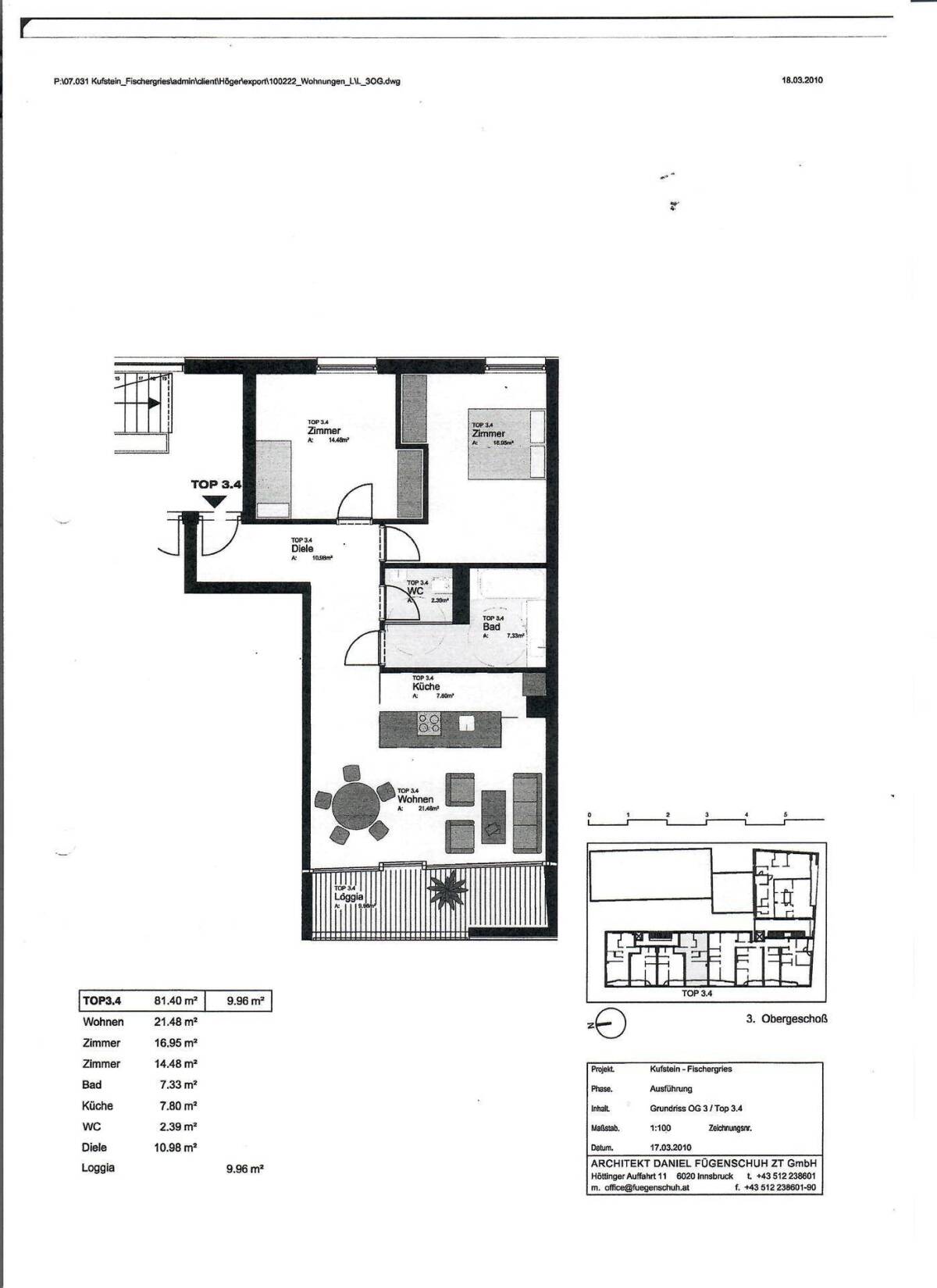
Fläche 86m2
Räume 3

Im Zentrum der Stadt Kufstein befindet sich diese Wohnung mit ca. 86 m². Trotz der zentralen Lage sind Sie in wenigen Minuten mit dem Rad oder dem Bus in der grünen Natur. Die Immobilie befindet sich im 3.Stock eines Mehr-Parteienwohnhauses. Die Wohnung gliedert sich in einen geräumigen Wohn-Essbereich mit Küche, zwei Schlafzimmer, ein Badezimmer mit Badewanne und extra WC. Durch die optimale Ausrichtung sind die Räume sonnig und hell. Vom Wohn-Essbereich gelangen Sie direkt auf die wettergeschützte Loggia mit ca. 10 m² mit Blick auf den Pendling und den Inn. Bei Bedarf kann ein Autoabstellplatz in der Tiefgarage angemietet werden. Haustiere sind eventuell nach Absprache erlaubt. Kufstein ist eine Stadt im Bundesland Tirol im Westen Österreichs. Alle Annehmlichkeiten des täglichen Bedarfs wie z. B. ein Lebensmittelgeschäft, eine Bäckerei, Ärzte, Volksschule, Kindergarten, Universitäten sowie diverse Gastronomiebetriebe uvm. finden Sie unmittelbar vor Ihrer Haustür. Der Hauptbahnhof ist nur wenige Gehminuten entfernt. Die Autobahn in Richtung Innsbruck bzw. Richtung Salzburg ist in 5 Minuten erreichbar. Durch die Lage direkt am Inn kann man in flachem Gelände ausgedehnte Spaziergänge oder Radtouren genießen und auch Nordic Walking Fans kommen auf Ihre Kosten. Für weitere Fragen stehen wir Ihnen jederzeit zur Verfügung.

Zuletzt besuchte Einträge