300.000 Immobilien in Österreich
Österreichs größtes Immobilienportal

Freundlich und hell in zentraler Lage!

Angebot auf Scout24
auf immi.at seit 18.12.2020
Kategorie Geschäftslokal
Adresse 6020 Innsbruck
Innsbruck-Stadt
Tirol
Preis EUR 2.054
Preis pro m2 EUR 16,17
Typ Miete
provisionsfrei nein
Fläche 127m2
Räume -

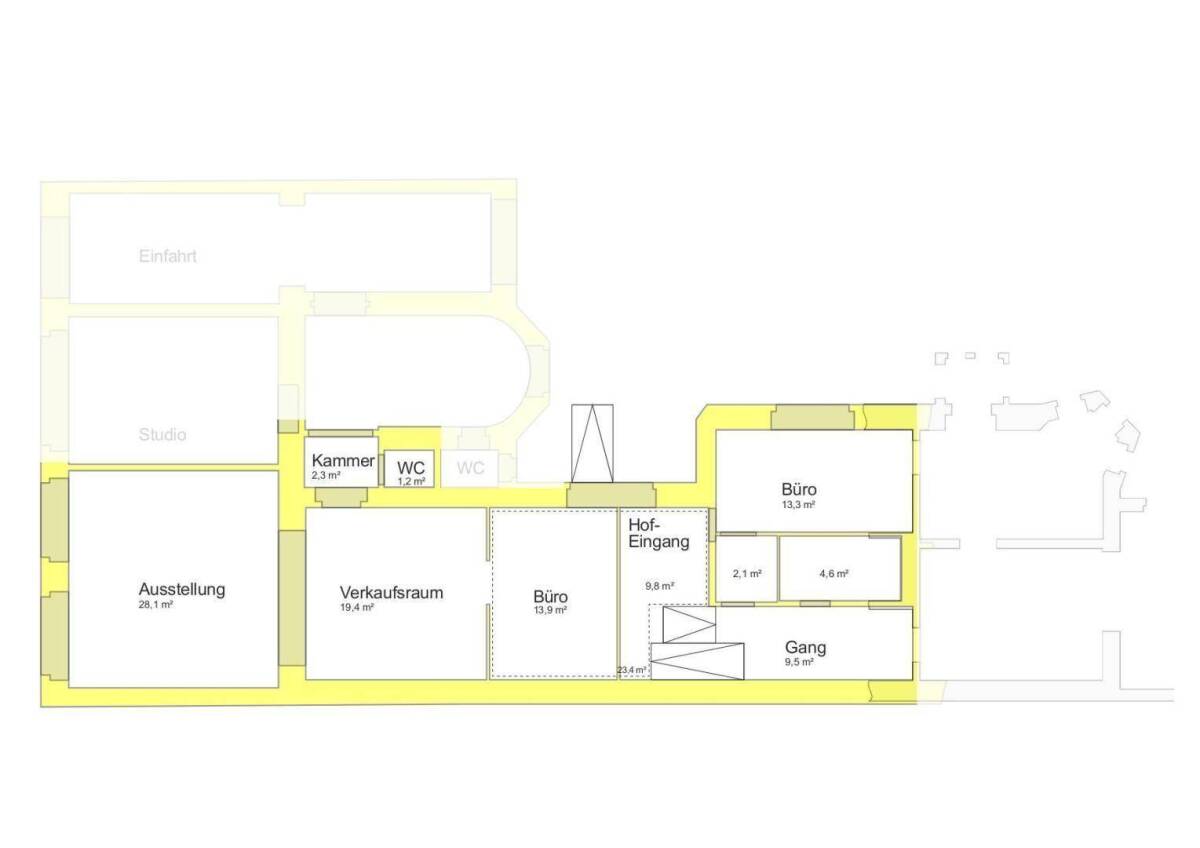
Dieses in Wilten gelegene Geschäftslokal besticht durch seine ideale Raumaufteilung und ist der perfekte Platz um Ihrer Kreativität freien Lauf zu lassen. Es bieten sich hier die verschiedensten Nutzungsmöglichkeiten: ob Schauraum, Praxis, Physiotherapie - vieles ist möglich! Durch die große Fensterfront wirkt das Lokal freundlich und hell. Das Erdgeschoss mit insgesamt ca. 127 m² besteht aus einem geräumigen Schauraum mit Teeküche, WC, Büros und Lagerfläche. Im hinteren Bereich finden Sie derzeit 3 Büroplätze sowie Stauraumfläche. Fakten: • ca. 127 m² - verschiedenste Nutzungsmöglichkeiten • große Fensterfront • WC • 3 Büroplätze • Lagerfläche im Erdgeschoss- Miete/Pacht netto inkl BK: Euro 2.631,-- • Provision laut Maklerverordnung Worauf warten Sie noch? Vereinbaren Sie Ihren persönlichen Besichtigungstermin unter 0699 11169511 und überzeugen Sie sich von diesem einzigartigen Angebot. Ich freue mich auf Ihren Anruf, Caroline Erler.Infrastruktur / EntfernungenGesundheit Arzt <500m Apotheke <500m Krankenhaus <500m Klinik <4.000m Kinder & Schulen Schule <500m Kindergarten <500m Universität <500m Höhere Schule <1.000m Nahversorgung Supermarkt <500m Bäckerei <500m Einkaufszentrum <500m Sonstige Bank <500m Geldautomat <500m Polizei <500m Post <500m Verkehr Bus <500m Straßenbahn <500m Bahnhof <1.000m Autobahnanschluss <1.500m Flughafen <4.000m Angaben Entfernung Luftlinie / Quelle: OpenStreetMap

Zuletzt besuchte Einträge