300.000 Immobilien in Österreich
Österreichs größtes Immobilienportal

Herrliche Süd-Ausrichtung mit Blick ins Grüne +++ Große Terrassenfläche im 2.OG über den Dächern +++ Nähe LKH und Med Uni - Knapp vor Fertigstellung!

Angebot auf Scout24
auf immi.at seit 21.12.2020
Kategorie Wohnung
Adresse 8010 Graz
Graz(Stadt)
Steiermark
Preis EUR 309.100
Preis pro m2 EUR 4.683,33
Typ Kauf
provisionsfrei ja
Fläche 66m2
Räume 3

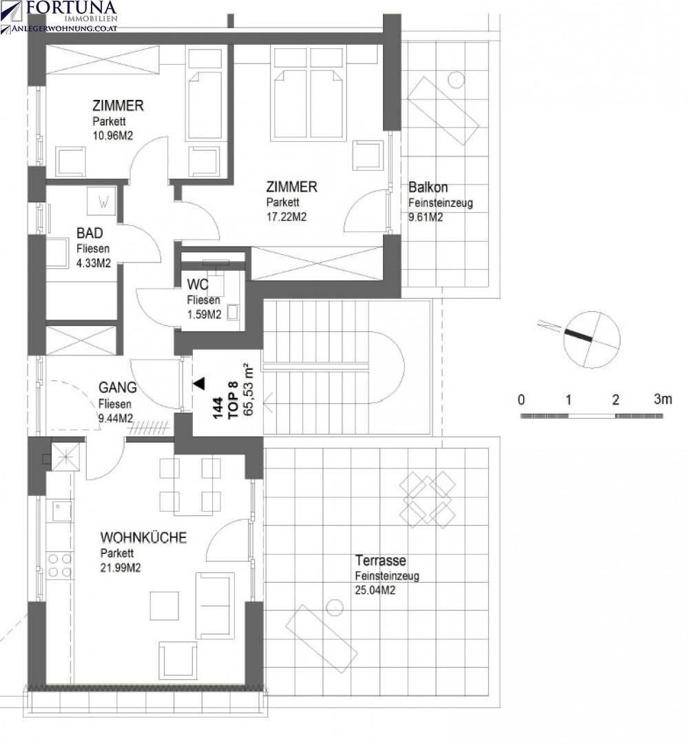
*** Bezugsfertig ***Sie wollen keine Kompromisse zwischen Lage, Architektur und ökologisch-qualitativen Ansprüchen machen? Nur das Beste ist für Sie gutgenug?!Grünraum-Feeling und Stadtnähe sind kein Widerspruch.In sensationeller, ruhiger Lage mit sehr guter Öffi-Anbindung ist diese exklusive Wohnanlage unweit von Med Campus und Universitätsklinik errichtet worden. Beim vorliegenden Projekt wurde auf ökologisch durchdachte Nachhaltigkeit und qualitativ höchste Ansprüche Wert gelegt!Neben der Bushaltestelle, die in einer Minute erreichbar ist, wird Sie auch ein Spar-Markt in unmittelbarer Umgebung zukünftig bestens versorgen.Freuen Sie sich auf 26 hervorragend ausgestattete und nach den modernsten Maßstäben gebaute Eigentumswohnungen, die keine Wünsche offen lassen! Aktuell stehen noch 2 ca. 65 m² große Wohnungen mit großzügigen Außenflächen zur Verfügung.Die Wohnungen eignen sich auch perfekt zum Vermieten. Sie sind als Eigennutzer oder Anleger schon lange auf der Suche nach einem außergewöhnlichen Projekt? Für Sie spielen Werthaltigkeit, verwendete Materialien, nachhaltige Energiebereitstellung eine wichtige Rolle?In unserem Projekt spiegeln sich Ihre hohen Anforderungen wider!Die besten Ideen führen zu absoluter Alleinstellung:38er Ziegel mit innenliegender Dämmung - beste Wärmedämmung, höchste Atmungsaktivität ohne klassischen Vollwärmeschutz!Holz / Alufenster mit 3-Scheiben-Isolierverglasung - Langlebigkeit durch den Einsatz von nachwachsenden Rohstoffen mit dem besten Schutz ausgestattet CO2 - neutrales Heizen! Pellets-Heizanlage - behagliche Fußbodenheizung in den WohnräumlichkeitenDie weiteren Highlights:sonnige Grünruhelagemoderne architektonische Gestaltunggroßzügige Freiflächendurchdachte Grundrissesehr gute Anbindung an den öffentlichen Verkehrwenige Minuten zum LKH/Med Uni Campushohe EnergieeffizienzTiefgaragePROVISIONSFREI!Gerne senden wir Ihnen auf Anfrage die vollständigen Projektunterlagen zu und freuen uns Sie zu einem Gespräch - gerne auch per Videokonferenz - begrüßen zu dürfen!Top 8 ist eine 65,5 m² Dachgeschoßwohnung, die durch den Ausblick und den extrem intelligent geschnittenen Grundriss überzeugt. Mit ca. 35 m² Außenflächen ergibt sich eine wunderschöne Erweiterung des Wohnraums. Sie können die süd-seitige Orientierung und die wärmenden Sonnenstrahlen bei einem herrlichen Glas Wein bis zum Abend genießen.Das Raumkonzept gliedert sich in:Wohnküche, 21,99 m²Vorraum, 9,44 m²Bad, 4,33 m²WC, 1,59 m²Zimmer, 10,96 m²Zimmer, 17,22 m²Terrasse, 25,04 m²Balkon, 9,61 m²Für weitere Informationen und Besichtigungen stehe ich Mag. Bernhard Gissing unter +43 316 / 712 777, oder +43 664 8872 8876, oder gissing@fortunaimmobilien.at, Ihnen sehr gerne zur Verfügung.Ich freue mich mit Ihnen ins Gespräch zu kommen!Hinweis gemäß Energieausweisvorlagegesetz: Ein Energieausweis wurde vom Eigentümer bzw. Verkäufer, nach unserer Aufklärung über die ab 1.12.2012 geltende generelle Vorlagepflicht, sowie Aufforderung zu seiner Erstellung noch nicht vorgelegt. Daher gilt zumindest eine dem Alter und der Art des Gebäudes entsprechende Gesamtenergieeffizienz als vereinbart. Wir übernehmen keinerlei Gewähr oder Haftung für die tatsächliche Energieeffizienz der angebotenen Immobilie.Infrastruktur / EntfernungenGesundheit Arzt <500m Apotheke <1.500m Klinik <1.500m Krankenhaus <2.000m Kinder & Schulen Schule <1.500m Kindergarten <500m Universität <1.500m Höhere Schule <4.000m Nahversorgung Supermarkt <1.500m Bäckerei <1.500m Einkaufszentrum <3.500m Sonstige Bank <1.500m Geldautomat <1.500m Post <1.500m Polizei <2.000m Verkehr Bus <500m Straßenbahn <1.500m Autobahnanschluss <6.500m Bahnhof <4.000m Angaben Entfernung Luftlinie / Quelle: OpenStreetMap

Zuletzt besuchte Einträge