300.000 Immobilien in Österreich
Österreichs größtes Immobilienportal

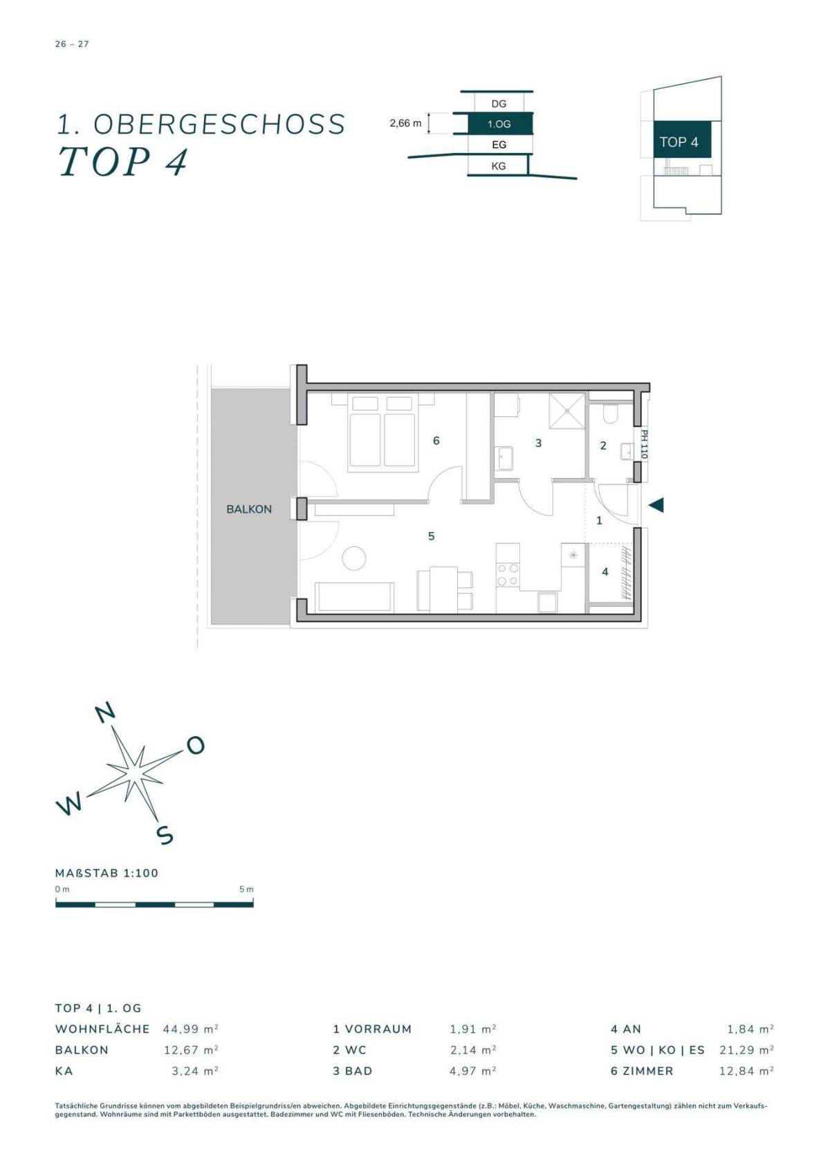
Provisionsfrei ab € 560,00 mtl. ohne Eigenkapital, bonitätsabhängig | Westlicht am Anger Graz-Andritz | exklusive 2-Zimmer-Eigentumswohnung

Angebot auf Scout24
auf immi.at seit 05.01.2021
Kategorie Wohnung
Adresse 8010 Graz
Graz(Stadt)
Steiermark
Preis EUR 178.650
Preis pro m2 EUR 3.970,00
Typ Kauf
provisionsfrei ja
Fläche 45m2
Räume 2

Kleine Wohnprojekte haben eine ganz spezielle Aura und üben auf viele Menschen eine besondere Anziehungskraft aus. Nicht wenige sehnen sich eben nach einem Leben in überschaubaren Strukturen. Ein solches kleines, geradezu exquisites Wohnprojekt entsteht gerade – und das noch dazu in bester Lage im Trendwohnbezirk Andritz. Nur 6 Wohnungen – Zwei- bis Vierzimmer – werden in diesem Objekt Am Hüttenbrenneranger 2, verkehrsmäßig gut angebunden unweit der Stattegger Straße, errichtet. Warum Andritz so beliebt ist? Weil sich hier spannende Neubauprojekte und ein beinahe schon pulsierendes urbanes Leben mit einem immer noch ländlichen Flair zu einem ganz eigenen Lebensgefühl verbinden. Die Wohnungen verteilen sich auf einen zweigeschossigen Hauptbaukörper und das allseitig zurückspringende Penthouse. Der moderne Bau repräsentiert urbanen Lifestyle und Wohnkomfort auf der Höhe der Zeit. Eigengärten bzw. Terrassen und Balkone, ausgerichtet in den Westen, geben dem Wohnraum eine weitere, grüne Dimension.

Zuletzt besuchte Einträge