300.000 Immobilien in Österreich
Österreichs größtes Immobilienportal

++ NEU ++ Stilaltbau mit laufendem Mietverhältnis – sicher investieren!

Angebot auf FMH
auf immi.at seit 19.11.2025
Kategorie Wohnung
Adresse 1030 Wien
Wien 3.,Landstraße
Wien
Preis EUR 490.000
Preis pro m2 EUR 4.579,44
Typ Kauf
provisionsfrei nein
Fläche 107m2
Räume 4

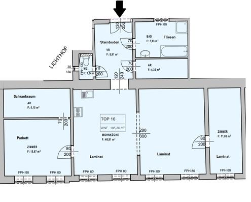
++ NEU ++ Stilaltbau mit laufendem Mietverhältnis – sicher investieren! ++ NEULINGGASSE in 1030 WIEN ++ ++ IDEALES INVESTMENT für ANLEGER ++ Zum Verkauf gelangt eine unbefristet vermietete Altbauwohnung in einem gepflegten 1890 erbauten Zinshaus im beliebten 3.Wiener Gemeindebezirk. Das Objekt befindet sich im 3. Liftstock und ist straßenseitig ausgerichtet. Die jährlichen Netto-Mieteinnahmen liegen bei 8.066,88 Euro (ohne BK und Ust.) Die Betriebskosten werden dem Mieter auch verrechnet. Nettomiete/Monat: € 672,24 BK Netto/Monat: € 213,18 Rücklage/Monat: € 80,97 unbefristeter Mietvertrag seit 2008 ! Kaufpreis: Der KAUFPREIS beläuft sich auf EUR 490.000.- Aus Rücksichtsnahme vor der Privatsphäre des Mieters können keine aktuellen Fotos der Wohnung veröffentlicht werden. Über den Zustand der Wohnung kann gesagt werden, dass es sich um typische Altbauwohnung handelt, die allerdings komplett neu renoviert wurde und sich in einem einwandfreien und sehr guten Zustand befindet. Raumaufteilung laut Grundriss: * Vorzimmer * Wohnküche * zwei Schlafzimmer * Schrankraum * Badezimmer mit Dusche und Wanne * Toilette mit Fenster * Abstellraum Ausstattung: - hohe und helle Räume - Holzzargen mit schönen Flügeltüren - Steinboden - Fenster - Gasetagenheizung - Kellerabteil ca. 8,00 m² - wunderschöner und begrünter Innenhof - Lift Lage: Zentrale Innenstadtlage in unmittelbarer Nähe des Modenaparks mit tollen Einkaufsmöglichkeiten (Landstraßer Hauptstrasse und Ungargasse) und einer optimalen Verkehrsanbindung zu: U3 (8 Gehmninuten), Bus 4A, Straßenbahn O & 1 in Richtung Wien Mitte und Hauptbahnhof in unmittelbarer Nähe. Der Stadtpark ist ca. 850 m Gehminuten entfernt. Nebenkosten: Im Falle eines Kaufes fallen folgende Nebenkosten an: Grunderwerbssteuer: 3,5 % vom Kaufpreis Grundbucheintragungsgebühren: 1,1% vom Kaufpreis Kosten der Vertragserrichtung nach Vereinbarung Maklerprovision: 3 % vom Kaufpreis zzgl. 20% Ust. Ansprechpartnerin: Fr. Schmutz Mobil: 0664 346 13 11 Mail: office@ps-immo.co.at ICH FREUE MICH AUF IHRE ANFRAGE ! Wir halten fest, dass ein wirtschaftliches Naheverhältnis zum Abgeber besteht - eine Weitergabe an andere Interessenten ohne Rücksprache mit uns ist nicht gestattet. Prima Service PS Immobilien tritt als Doppelmakler auf. Alle Angaben sind ohne Gewähr und basieren ausschließlich auf Informationen, die uns von unserem Auftraggeber zur Verfügung gestellt wurden. Wir übernehmen keine Gewähr für die Vollständigkeit, Richtigkeit und Aktualität dieser Angaben. Der Maklervertrag kommt durch schriftliche Vereinbarung oder Inanspruchnahme unserer Maklertätigkeit zustande. Die Courtage in Höhe von 3%  zzgl. gesetzt. USt. ist ausschließlich bei Zustandekommen eines gültigen Rechtsgeschäftes fällig und vom Käufer an die Firma Prima Service PS Immobilien zu zahlen..Barrierefrei: JAProvision: 3%

Zuletzt besuchte Einträge