300.000 Immobilien in Österreich
Österreichs größtes Immobilienportal

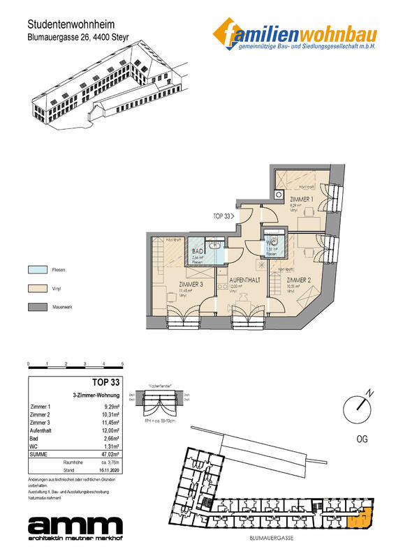
4400 Steyr, Blumauergasse 26 - Studentenwohnheim

Angebot auf FMH
auf immi.at seit 04.03.2026
Kategorie Wohnung
Adresse 4400 Steyr
Steyr(Stadt)
Oberösterreich
Preis EUR 452
Preis pro m2 EUR 50,22
Typ Miete
provisionsfrei nein
Fläche 9m2
Räume 1

 MACH DIE FABRIK ZU DEINER HOMEBASE!  Das Zimmer ist ab sofort verfügbar.   Zimmer: Hochbett mit Aufstiegsmöglichkeit 18 variable Regalböden im Aufstiegsmöbel Leselampe am Hochbett Lattenrost Matratze Nachtboard 1 oder 2 Kleiderschränke mit je 2 Regalböden Schreibtisch Drehstuhl Aufenthaltsraum: 1 Esstisch zwei Sessel Garderobenboard mit 4 Haken Spiegel ca. 50 x 155 cm Gegensprechanlage Küchenzeile mit Ober- und Unterschränken: Cerankochfeld mit 2 Kochzonen, Mikrowelle mit Grillfunktion, Kühlschrank mit Gefrierkombination, Integrierte Arbeitsflächenbeleuchtung und Spüle mit darunterliegendem Müllauszug BAD: Duscharmatur mit Schubstange verchromt Spiegel in Fliesenebene Etagere / Keramik unterhalb des Spiegels Handtuchhaken WC: Toilettenpapierhalterung WC-Bürstengarnitur Großzügige Gemeinschaftsbereiche mit: Foyer mit Gemeinschaftsküche und Barbereich Gut ausgestatteter Fitnessraum Freibereich im Atrium mit Tischtennis, Tischfußball Lounge mit Sofa und Flatscreen im Dachgeschoss Waschküche Fahrradraum Stellplätze im freien können zusätzlich angemietet werden GRATIS WLAN   DEIN RÜCKZUGSORT Du willst auf eigenen Beinen stehen? Du studierst und suchst nach einer richtig coolen Bleibe? Egal ob Du Dich für ein WG-Zimmer oder eine Garconiere entscheidest - jedes Zimmer ist möbliert und deckt mit Schreibtisch, Schreibtischsessel, Bett oder Hochbett und genügend Stauraum alle Bedürfnisse ab. Außerdem ist jede Wohneinheit mit einer eigenen Küche ausgestattet. Du möchtest Deine eigenen 4 Wände haben aber dennoch nicht ganz alleine wohnen? Gerade wenn wichtige Prüfungen anstehen, brauchst du Ruhe und Zeit für Dich, wo Du dich in Deinem Zimmer zurückziehen kannst! Nach Prüfungswochen kannst Du dann gemeinsam mit Deinen Freunden aus der WG in der Lounge vor dem Flatscreen chillen, die Tischfussballrunde im Freien genießen oder dich im Fitnessraum auspowern. Bei Interesse ruf uns einfach an und informiere dich. Wir freuen uns auf deinen Anruf!