300.000 Immobilien in Österreich
Österreichs größtes Immobilienportal

Wohnen im Viola Park! Erstbezug! 2-Zimmer-Wohnung mit Terrasse zu vermieten!

Angebot auf FMH
auf immi.at seit 13.03.2026
Kategorie Wohnung
Adresse 1100 Wien
Wien 10.,Favoriten
Wien
Preis EUR 1.390
Preis pro m2 EUR 24,82
Typ Miete
provisionsfrei nein
Fläche 56m2
Räume 2

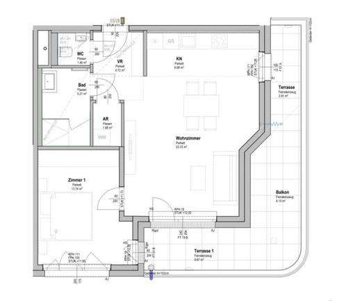
Vermietet wird diese hochwertige 2-Zimmer-Wohnung mit Terrasse im 10. Wiener Gemeindebezirk Favoriten! Die ca. 57 m² große Wohnung befindet sich in der 4. Etage eines Neubaus! Video-Besichtigung: https://youtu.be/Dq2yAIN6_GM Wohnung: - 4. Etage mit Lift - Befristung: 5 Jahre/ Kündigungsverzicht: 1 Jahr - Maßküche vom Tischler mit Bosch-Geräten: Backofen, Cerankochfeld, Dunstabzug, Geschirrspüler, Kombikühlschrank, Mikrowelle - Langriemen-Eichenparkett  - Alu-Kunststofffenster - Ausrichtung: Südosten - Einbruchhemmende Wohnungseingangstüren - Raffstores (elektrisch bedienbar) - Bodenebene Walk-In Duschen mit Verglasung - Kontrollierte Wohnraumlüftung mit Wärmerückgewinnung - Heizen und (Teil-)Kühlen über oberflächennahe Bauteilaktivierung in der Decke - Heizung und Warmwasseraufbereitung über Geothermie (Sole/Wasser-Wärmepumpe) (Fußbodenheizung) Wohnhausanlage: - Neubau (Baujahr: 2025) - Werte laut Energieausweis: HWBREF, SK: 23,9 kWh/m²a (Energieklasse A), fGEE, SK: 0,59 (Energieklasse A+). Gültig bis: 14.04.2035 - Fahrrad- und Kinderwagenabstellraum im Haus - Kleinkinderspielplatz - Urban Gardening - Facettenreiche Begrünung durch Bäume, Sträucher und Hecken - Paketboxen-Anlage Infrastruktur: - Hofer - 4 Gehminuten entfernt - Pizzeria - 4 Gehminuten entfernt - Apotheke 7 Gehminuten entfernt - Erholungsgebiet Laaer Wald 7 Gehminuten entfernt - Lidl - 8 Gehminuten entfernt - Generali Arena 8 Gehminuten entfernt Verkehrsanbindungen:  U-Bahn: U1 Troststraße (15 Minuten mit dem Bus) Bus: 68A, 68B - Theodor Sickel Gasse (4 Gehminuten), 15A Florian Geyer Gasse (10 Gehminuten) Die 56,82 m² Wohnfläche bietet wie folgt: - Vorzimmer - Wohnküche - Schlafzimmer - Badezimmer mit Dusche - separates WC mit Handwaschbecken - Abstellraum mit Waschmaschinenanschluss + Terrasse: 19,73 m² Zur Wohnung gehört ein separates Kellerabteil (ca. 2,24 m²). Die Monatsmiete beträgt brutto: EUR 1.390,- (inkl. Betriebskosten und USt.).  Die Energiekosten (Strom, Heizung, Warm- und Kaltwasser) sind je nach Verbrauch extra zu bezahlen.  Die Kaution beträgt 3 BMM: EUR 4.170,- Der Eigentümer verpflichtet seine MieterInnen eine Haushaltsversicherung (ca. EUR 15,-/ Monat) abzuschließen. Für weitere Informationen bzw. eine kurzfristige Besichtigung steht Ihnen: Milan NADOR unter +43 664 46 37 996 oder info@nagyimmobilien.at gerne zur Verfügung! Auch am Wochenende!   Der Immobilienmakler erklärt, dass er entgegen dem in der Immobilienwirtschaft üblichen Geschäftsgebrauch des Doppelmaklers einseitig nur für den Vermieter tätig ist.Infrastruktur / EntfernungenGesundheitArzt

Zuletzt besuchte Einträge