300.000 Immobilien in Österreich
Österreichs größtes Immobilienportal

Hohe Wohnbauförderung- Familienwohnungen mit 3 Schlafzimmer in einem Neubau

Angebot auf WohnNet
auf immi.at seit 18.11.2025
Kategorie Terassenwohnung
Adresse 5622 Goldegg
Sankt Johann im Pongau
Salzburg
Preis EUR 545.547
Preis pro m2 EUR 5.682,78
Typ Kauf
provisionsfrei ja
Fläche 96m2
Räume 4

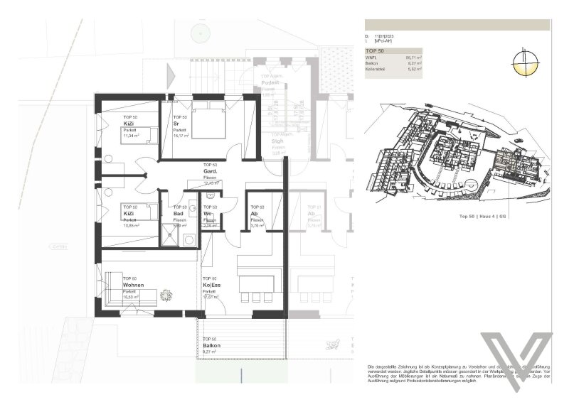
Zum Verkauf stehen 4 Eigentumswohnungen mit einer Wohnfläche von ca. 96 m² Sehr interessant: KAUF direkt vom Bauträger- bis zu ? 80.000,- Wohnbauförderung! Bis Juni 2026 kann die Gebührenbefreiung der Grundbuch- und Pfandeintragungsgebühr in Anspruch genommen werden. PROVISIONSFREI! Kaufpreis Top 50 + Top 51: 96 m² ? 545.547,- Kaufpreis Top 52 + Top 53: 96 m² ? 551.253,- Kaufpreise Stellplätze: Tiefgarage: ? 29.500,- Carport: ? 22.000,- Freistellplatz: ? 18.000,- Einteilungen der verfügbaren Wohnungen: große Wohnküche, 3 Schlafzimmer, Vorraum, Abstellraum, Bad mit Dusche, WC. BALKON, KELLERABTEIL; die Wohnungen werden umgehend nach dem Kauf fertiggestellt (Sanitär, Fliesen und Holzböden) ausgestattet werden die Zimmer mit Fliesen und österreichischen Parkettböden geheizt wird mit einer effizienten Fußbodenheizung per Fernwärme (wird mit einem eigenen Heizwerk betrieben)  Photovoltaik-Anlage regional gebaut mit der MHM Massiv-Holz-Mauer ökologische Holzweichfaserdämmung hochwe

Zuletzt besuchte Einträge