300.000 Immobilien in Österreich
Österreichs größtes Immobilienportal

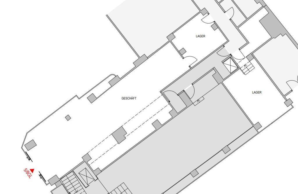
Geschäfslokal mit 2 Lagerräume

Angebot auf Scout24
auf immi.at seit 13.01.2021
Kategorie Geschäftslokal
Adresse 1010 Wien
Wien 1.,Innere Stadt
Wien
Preis EUR 10.792
Preis pro m2 EUR 98,11
Typ Miete
provisionsfrei nein
Fläche 110m2
Räume -

Geschäftslokal mit 2 Lagerräume Nähe Freyung, Schottentor 1 großes Geschäftslokel, 2 Lagerräume Gute Infrastruktur U2 Schottentor und Straßenbahn 1, 37, 38, 40, 41, 42, 43, 44,71, D in unmittelbarer Nähe 3 Jahre Kündigungsverzicht befristet auf 10 Jahre mit Verlängerungsoption 6 BMM Kaution 3 BMM ProvisionAngaben gemäß gesetzlichem Erfordernis: Miete € 8760,8 zzgl 20% USt. Betriebskosten € 232,82 zzgl 20% USt. Umsatzsteuer € 1798,72 ------------------------------------------------------------------ Gesamtbetrag € 10792,34

Zuletzt besuchte Einträge