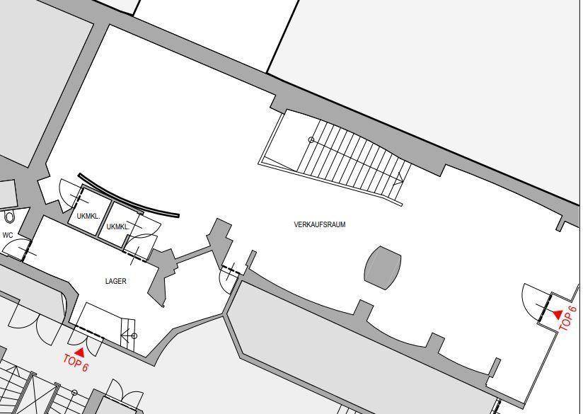
Geschäftslokal auf 2 Etagen in bester Innenstadtlage
| Angebot auf | Scout24 |
| auf immi.at seit | 16.10.2020 |
| Kategorie | Geschäftslokal |
| Adresse | 1010 Wien Wien 1.,Innere Stadt Wien |
| Preis | EUR 12.205 |
| Preis pro m2 | EUR 43,75 |
| Typ | Miete |
| provisionsfrei | nein |
| Fläche | 279m2 |
| Räume | - |
Geschäftslokal auf 2 Etagen in bester Innenstadtlage Nähe Stephansplatz EG: großer Verkaufsraum, 2 Umkleidekabinen, Lager, Toilette 1. UG: großer Verkaufsraum, 2 Umkleidekabinen, Lager, Büro, Toilette mit Handwaschbecken sehr gute öffentliche Verkehrsanbindung Autobus 1A, 2A U1, U3 Stephansplatz 3 Jahre Kündigungsverzicht befristet auf 10 Jahre mit Verlängerungsoption 6 BMM Kaution 3 BMM Provision Energieausweis wird nachgereichtAngaben gemäß gesetzlichem Erfordernis: Miete € 9747,5 zzgl 20% USt. Betriebskosten € 424,02 zzgl 20% USt. Umsatzsteuer € 2034,3 ------------------------------------------------------------------ Gesamtbetrag € 12205,82